

- Home
- Aanbod
- Koopaanbod
- Mirachstraat 5
Mirachstraat 5
ZUIDHORN
Ben jij op zoek naar een ruime twee-onder-een-kapwoning in een rustige straat, zónder directe overburen, met uitzicht op een speeltuintje? Dan is Mirachstraat 5 in Zuidhorn precies wat je zoekt. Deze royale woning – het ruimste type in de populaire wijk De Oostergast – biedt een comfortabele woonplek voor het hele gezin.
Eerste enkele pluspunten op een rij:
+ Energiezuinig dankzij volledige isolatie, 12 zonnepanelen en energielabel A+
+ Vrij uitzicht aan de voorzijde op een speeltuintje, geen directe overburen
+ Ruime en lichte woonkamer met open keuken en openslaande deuren naar de tuin
+ Drie volwaardige slaapkamers op de eerste verdieping
+ Grote, multifunctionele zolder met daglicht en mogelijkheid voor één of twee extra kamers
+ Bijkeuken en verlengde garage aanwezig
INDELING
Via de zij-entree kom je in de hal met trapopgang en trapkast. De hal biedt toegang tot de toiletruimte met wandcloset en fonteintje. Vanuit de hal stap je ook de royale woonkamer in, die samen met de open keuken maar liefst ca. 61 m² groot is. De woonkamer ligt aan de voorzijde van de woning en biedt uitzicht op het speeltuintje. Dankzij de houten vloer en de openslaande deuren naar de achtertuin voelt de ruimte warm en licht aan. De keuken in hoekopstelling is voorzien van een 5-pits gaskookplaat met afzuigkap, combi-oven, vaatwasser en koelkast. Aansluitend vind je de praktische bijkeuken met witgoedaansluitingen en toegang tot de verlengde, geïsoleerde garage. Deze is groter dan standaard en biedt daardoor extra veel ruimte voor opslag of het stallen van fietsen of motor.
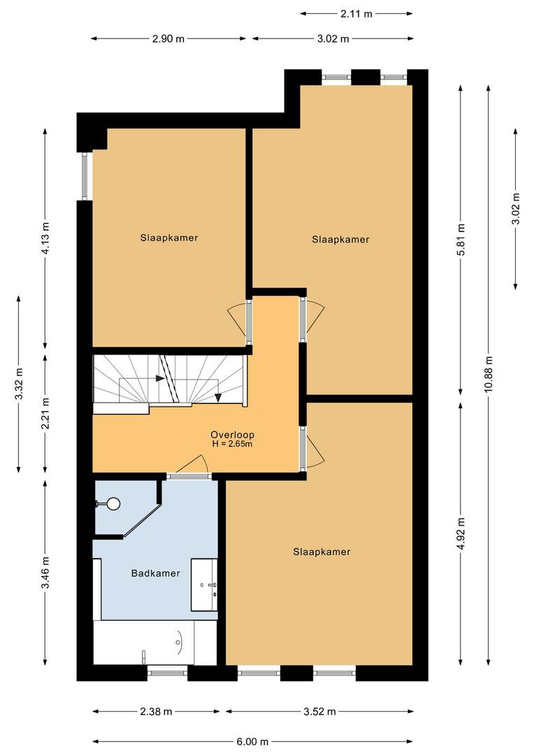
Op de eerste verdieping bevinden zich drie ruime slaapkamers, allemaal voorzien van een houten vloer. Aan de voorzijde van de woning liggen twee kamers: een slaapkamer van ca. 14,7 m² met een nisje – ideaal voor het plaatsen van een bureau of het inrichten van een werkplek – en een slaapkamer van ca. 11,8 m² met een raam in de zijgevel, wat zorgt voor veel lichtinval. Aan de achterzijde ligt de grootste slaapkamer van ca. 15 m². Ook aan de achterzijde ligt de nette badkamer van ca. 8,1 m², uitgerust met een bubbelbad, aparte douche, wastafelmeubel en een wandcloset.
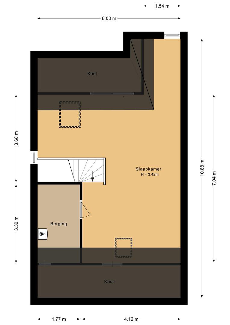
De tweede verdieping is een royale open zolder van ca. 38 m², met dakramen aan zowel de voor- als achterzijde. Aan de voorzijde bevindt zich eveneens een leuk nisje. De cv-installatie (2023), het WTW-systeem en de omvormer van de zonnepanelen zijn netjes weggewerkt in een afgetimmerde technische ruimte. Dankzij de ruimte, het daglicht en de indeling is deze verdieping uitstekend geschikt voor het creëren van één of twee extra kamers. En gezien de hoogte van deze verdieping is het zelfs mogelijk om hier een vliering te realiseren – ideaal voor extra bergruimte.
RONDOM DE WONING
De achtertuin ligt op het zuiden en is netjes aangelegd met borders en groene beplanting. Via de openslaande deuren in de woonkamer stap je zo het terras op. De woning beschikt over een ruime achterom; de doorgang naast de garage is nog ca. 2 meter breed. Aan de voorzijde bevindt zich een eigen oprit met ruimte voor meerdere auto’s. Leuk detail is de ingebouwde bloembak bij het voorraam, die niet alleen praktisch is, maar ook bijdraagt aan de vriendelijke uitstraling van de woning.
ZUIDHORN
Zuidhorn is een geliefde woonplaats, op slechts 15 minuten rijden van Groningen. In het dorp vind je diverse voorzieningen, zoals supermarkten, winkels en een zwembad. Zuidhorn staat bekend om zijn groene omgeving en fijne dorpssfeer, perfect voor gezinnen en rustzoekers.
De nieuwste en meest gewilde woonwijk in Zuidhorn is De Oostergast. Deze wijk is ontworpen met oog voor duurzaamheid, ruimtelijkheid en een moderne, dorpse uitstraling. Met veel groen, waterpartijen en diverse woningtypen biedt De Oostergast een prettige woonomgeving voor jong en oud. Dankzij de nabijheid van scholen, sportvoorzieningen en de uitstekende verbindingen met Groningen is de wijk een aantrekkelijke keuze voor wie landelijk wil wonen met stedelijke gemakken binnen handbereik.
Heb je interesse in deze ruime woning in de populaire wijk De Oostergast? Bel of mail ons gerust voor een afspraak.
Lees meer
Minder
Eerste enkele pluspunten op een rij:
+ Energiezuinig dankzij volledige isolatie, 12 zonnepanelen en energielabel A+
+ Vrij uitzicht aan de voorzijde op een speeltuintje, geen directe overburen
+ Ruime en lichte woonkamer met open keuken en openslaande deuren naar de tuin
+ Drie volwaardige slaapkamers op de eerste verdieping
+ Grote, multifunctionele zolder met daglicht en mogelijkheid voor één of twee extra kamers
+ Bijkeuken en verlengde garage aanwezig
INDELING
Via de zij-entree kom je in de hal met trapopgang en trapkast. De hal biedt toegang tot de toiletruimte met wandcloset en fonteintje. Vanuit de hal stap je ook de royale woonkamer in, die samen met de open keuken maar liefst ca. 61 m² groot is. De woonkamer ligt aan de voorzijde van de woning en biedt uitzicht op het speeltuintje. Dankzij de houten vloer en de openslaande deuren naar de achtertuin voelt de ruimte warm en licht aan. De keuken in hoekopstelling is voorzien van een 5-pits gaskookplaat met afzuigkap, combi-oven, vaatwasser en koelkast. Aansluitend vind je de praktische bijkeuken met witgoedaansluitingen en toegang tot de verlengde, geïsoleerde garage. Deze is groter dan standaard en biedt daardoor extra veel ruimte voor opslag of het stallen van fietsen of motor.
Op de eerste verdieping bevinden zich drie ruime slaapkamers, allemaal voorzien van een houten vloer. Aan de voorzijde van de woning liggen twee kamers: een slaapkamer van ca. 14,7 m² met een nisje – ideaal voor het plaatsen van een bureau of het inrichten van een werkplek – en een slaapkamer van ca. 11,8 m² met een raam in de zijgevel, wat zorgt voor veel lichtinval. Aan de achterzijde ligt de grootste slaapkamer van ca. 15 m². Ook aan de achterzijde ligt de nette badkamer van ca. 8,1 m², uitgerust met een bubbelbad, aparte douche, wastafelmeubel en een wandcloset.
De tweede verdieping is een royale open zolder van ca. 38 m², met dakramen aan zowel de voor- als achterzijde. Aan de voorzijde bevindt zich eveneens een leuk nisje. De cv-installatie (2023), het WTW-systeem en de omvormer van de zonnepanelen zijn netjes weggewerkt in een afgetimmerde technische ruimte. Dankzij de ruimte, het daglicht en de indeling is deze verdieping uitstekend geschikt voor het creëren van één of twee extra kamers. En gezien de hoogte van deze verdieping is het zelfs mogelijk om hier een vliering te realiseren – ideaal voor extra bergruimte.
RONDOM DE WONING
De achtertuin ligt op het zuiden en is netjes aangelegd met borders en groene beplanting. Via de openslaande deuren in de woonkamer stap je zo het terras op. De woning beschikt over een ruime achterom; de doorgang naast de garage is nog ca. 2 meter breed. Aan de voorzijde bevindt zich een eigen oprit met ruimte voor meerdere auto’s. Leuk detail is de ingebouwde bloembak bij het voorraam, die niet alleen praktisch is, maar ook bijdraagt aan de vriendelijke uitstraling van de woning.
ZUIDHORN
Zuidhorn is een geliefde woonplaats, op slechts 15 minuten rijden van Groningen. In het dorp vind je diverse voorzieningen, zoals supermarkten, winkels en een zwembad. Zuidhorn staat bekend om zijn groene omgeving en fijne dorpssfeer, perfect voor gezinnen en rustzoekers.
De nieuwste en meest gewilde woonwijk in Zuidhorn is De Oostergast. Deze wijk is ontworpen met oog voor duurzaamheid, ruimtelijkheid en een moderne, dorpse uitstraling. Met veel groen, waterpartijen en diverse woningtypen biedt De Oostergast een prettige woonomgeving voor jong en oud. Dankzij de nabijheid van scholen, sportvoorzieningen en de uitstekende verbindingen met Groningen is de wijk een aantrekkelijke keuze voor wie landelijk wil wonen met stedelijke gemakken binnen handbereik.
Heb je interesse in deze ruime woning in de populaire wijk De Oostergast? Bel of mail ons gerust voor een afspraak.
Specificaties
Over dit object
Overdracht
| Status | verkocht |
|---|---|
| Prijs | € 525.000 k.k. |
Bouw
| Bouwjaar | 2008 |
|---|---|
| Bouwvorm | bestaande bouw |
| Type Object | Woonhuis |
| Hoofdfunctie | Woonruimte |
Indeling
| Woonoppervlakte | 180 m² |
|---|---|
| Perceeloppervlakte | 296 m² |
| Woning Inhoud | 735 m³ |
| Kamers | 6 (3 slaapkamers) |
Energie
| Energielabel | A+ |
|---|
Heb je vragen?
Neem contact met ons op.
Jouw NVM makelaar:
Dijkstra Makelaardij & Financieel advies
























































































Refresh to make it work.
Refresh to make it work.