

- Home
 - Aanbod
 - Koopaanbod
 - Briljantstraat 329
 
Briljantstraat 329
GRONINGEN
Ben jij op zoek naar een ruime tussenwoning met vier slaapkamers, tuin op het zuiden en gelegen aan een rustig hofje? Dan is Briljantstraat 329 in Groningen zeker een kijkje waard! Deze goed onderhouden woning beschikt over een energielabel B, zonnepanelen en recent uitgevoerd schilderwerk.
Eerst enkele pluspunten op een rij:
+ Ruime doorzonwoonkamer met fraaie eikenhouten vloer
+ Moderne keuken met inbouwapparatuur
+ Vier ruime slaapkamers
+ 6 zonnepanelen (2021)
+ Tuin op het zuiden met achterom en stenen berging met elektra
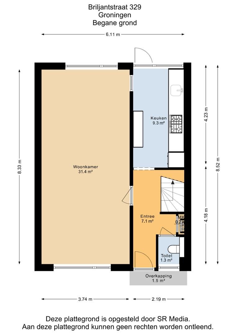
INDELING
Begane grond: entree met toilet, trapopgang en meterkast. Lichte doorzonwoonkamer met eikenhouten vloer en doorkijk naar de keuken. Moderne keuken voorzien van koelkast, combimagnetron, vaatwasser, 5-pits gaskookplaat en afzuigkap.
Eerste verdieping: ruime overloop met toegang tot drie slaapkamers. De grootste slaapkamer aan de achterzijde is voorzien van airconditioning. Badkamer met douche, wastafel, toilet en designradiator.
Tweede verdieping: overloop met dakraam, aansluitingen voor wasmachine en droger, de CV-installatie en de omvormer voor de zonnepanelen. Verder een vierde slaapkamer met groot dakraam en bergruimte achter de knieschotten.
RONDOM DE WONING
De achtertuin ligt op het zuiden en is volledig bestraat. Er is een groot zonnescherm aanwezig. De vrijstaande stenen berging beschikt over elektra en via de achterom is de tuin goed bereikbaar.
VINKHUIZEN
De woning ligt in de wijk Vinkhuizen. Voorzieningen zoals basisscholen, supermarkten, sportverenigingen en een winkelcentrum zijn dichtbij. Het centrum van Groningen is in circa 15 minuten met de fiets bereikbaar. De ringweg en uitvalswegen liggen op korte afstand en ook het openbaar vervoer richting de stad is goed geregeld.
Interesse? Neem contact met ons op voor een bezichtiging.
Lees meer
Minder
Eerst enkele pluspunten op een rij:
+ Ruime doorzonwoonkamer met fraaie eikenhouten vloer
+ Moderne keuken met inbouwapparatuur
+ Vier ruime slaapkamers
+ 6 zonnepanelen (2021)
+ Tuin op het zuiden met achterom en stenen berging met elektra
INDELING
Begane grond: entree met toilet, trapopgang en meterkast. Lichte doorzonwoonkamer met eikenhouten vloer en doorkijk naar de keuken. Moderne keuken voorzien van koelkast, combimagnetron, vaatwasser, 5-pits gaskookplaat en afzuigkap.
Eerste verdieping: ruime overloop met toegang tot drie slaapkamers. De grootste slaapkamer aan de achterzijde is voorzien van airconditioning. Badkamer met douche, wastafel, toilet en designradiator.
Tweede verdieping: overloop met dakraam, aansluitingen voor wasmachine en droger, de CV-installatie en de omvormer voor de zonnepanelen. Verder een vierde slaapkamer met groot dakraam en bergruimte achter de knieschotten.
RONDOM DE WONING
De achtertuin ligt op het zuiden en is volledig bestraat. Er is een groot zonnescherm aanwezig. De vrijstaande stenen berging beschikt over elektra en via de achterom is de tuin goed bereikbaar.
VINKHUIZEN
De woning ligt in de wijk Vinkhuizen. Voorzieningen zoals basisscholen, supermarkten, sportverenigingen en een winkelcentrum zijn dichtbij. Het centrum van Groningen is in circa 15 minuten met de fiets bereikbaar. De ringweg en uitvalswegen liggen op korte afstand en ook het openbaar vervoer richting de stad is goed geregeld.
Interesse? Neem contact met ons op voor een bezichtiging.
Specificaties
Over dit object
Overdracht
| Status | onder bod | 
|---|---|
| Prijs | € 350.000 k.k. | 
Bouw
| Bouwjaar | 1970 | 
|---|---|
| Bouwvorm | bestaande bouw | 
| Type Object | Woonhuis | 
| Hoofdfunctie | Woonruimte | 
Indeling
| Woonoppervlakte | 126 m² | 
|---|---|
| Perceeloppervlakte | 119 m² | 
| Woning Inhoud | 441 m³ | 
| Kamers | 5 (4 slaapkamers) | 
Energie
| Energielabel | B | 
|---|
Plan een bezichtiging 
voor: Briljantstraat 329
Jouw NVM makelaar:
Dijkstra Makelaardij & Financieel advies
























































































Refresh to make it work.
Refresh to make it work.