

- Home
- Aanbod
- Koopaanbod
- Troelstraweg 11
Troelstraweg 11
ZUIDHORN
Welkom aan de Troelstraweg 11 in Zuidhorn! Deze verzorgde 2-onder-1-kapwoning is helemaal van deze tijd: volledig gasloos, voorzien van energielabel A++ en uitgerust met 15 zonnepanelen. De woning is door de jaren heen comfortabel gemoderniseerd en beschikt over een uitgebouwde woonkeuken, 2 badkamers en een royale achtertuin. Een fijne plek voor wie comfortabel en energiezuinig wil wonen.
Eerst enkele pluspunten op een rij:
+ Moderne woonkeuken (2021) met luxe inbouwapparatuur
+ Luxe badkamer vernieuwd in 2023
+ Vloerverwarming op de gehele begane grond en in de badkamer
+ Ruime zolderverdieping met badkamer
+ Energielabel A++ en volledig gasloos
+ 15 zonnepanelen
+ Warmtepomp, WTW-installatie en waterontharder
INDELING
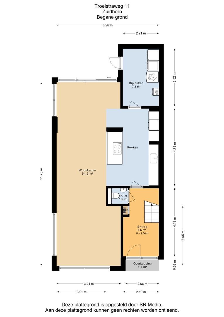
Je komt binnen in de hal met een modern toilet, vernieuwde meterkast en trapopgang. De gehele begane grond is voorzien van comfortabele vloerverwarming. Aan de voorzijde van de woning bevindt zich het zitgedeelte van de woonkamer, een prettige en lichte ruimte met voldoende plek voor een royale zithoek.
Aan de achterzijde is de woning in 2021 uitgebouwd tot een ruime woonkeuken. Deze ruimte biedt volop plaats voor een grote eettafel en staat via de schuifpui in direct contact met de tuin. De keuken is compleet uitgevoerd met een composiet werkblad, Bora inductiekookplaat, Quooker Combi, vaatwasser, warmhoudlade, Miele combi-stoomoven en koelkast. Aansluitend bevindt zich de bijkeuken met witgoedaansluitingen, waterontharder, WTW-installatie en warmtepomp.
Op de eerste verdieping zijn vier ruime slaapkamers aanwezig, allemaal netjes afgewerkt. De badkamer is in 2023 vernieuwd en ingericht met een ligbad, inloopdouche, vloerverwarming, designradiator, verlichte spiegel en toilet.
De tweede verdieping is een volwaardige woonlaag met een dakkapel wat voor zorgt voor veel lichtinval. Hier is een ruime slaapkamer gerealiseerd met een eigen badkamer, voorzien van een inloopdouche en wastafel. Daarnaast is er extra bergruimte en bevinden zich hier de installaties voor de mechanische ventilatie. Aan de achterzijde zijn elektrisch bedienbare screens aanwezig.
RONDOM DE WONING
De achtertuin is verzorgd aangelegd en bestaat uit een prettige combinatie van bestrating en groen. Direct achter de woning is ruimte voor een terras en het gazon zorgt voor een open uitstraling. De tuin is praktisch ingedeeld en biedt een fijne mate van privacy.
Achter in de tuin staat de vrijstaande garage, geschikt voor opslag, fietsen of hobbygebruik.
ZUIDHORN
Zuidhorn is een geliefd dorp met een prettige mix van rust, ruimte en voorzieningen. Je vindt er diverse supermarkten, winkels, basisscholen en sportverenigingen, maar ook een treinstation met een directe verbinding naar Groningen. De stad Groningen is met de trein in ongeveer 9 minuten te bereiken, met de auto in circa 15 minuten en met de fiets in zo’n 35 minuten.
Zuidhorn heeft daarnaast een actief verenigingsleven en verschillende gezellige eetgelegenheden. Het is een dorp waar je het dorpsgevoel ervaart, maar toch dichtbij de stad woont.
Nieuwsgierig geworden? Maak dan een afspraak voor een bezichtiging en ervaar zelf het comfort van deze woning.
Lees meer
Minder
Eerst enkele pluspunten op een rij:
+ Moderne woonkeuken (2021) met luxe inbouwapparatuur
+ Luxe badkamer vernieuwd in 2023
+ Vloerverwarming op de gehele begane grond en in de badkamer
+ Ruime zolderverdieping met badkamer
+ Energielabel A++ en volledig gasloos
+ 15 zonnepanelen
+ Warmtepomp, WTW-installatie en waterontharder
INDELING
Je komt binnen in de hal met een modern toilet, vernieuwde meterkast en trapopgang. De gehele begane grond is voorzien van comfortabele vloerverwarming. Aan de voorzijde van de woning bevindt zich het zitgedeelte van de woonkamer, een prettige en lichte ruimte met voldoende plek voor een royale zithoek.
Aan de achterzijde is de woning in 2021 uitgebouwd tot een ruime woonkeuken. Deze ruimte biedt volop plaats voor een grote eettafel en staat via de schuifpui in direct contact met de tuin. De keuken is compleet uitgevoerd met een composiet werkblad, Bora inductiekookplaat, Quooker Combi, vaatwasser, warmhoudlade, Miele combi-stoomoven en koelkast. Aansluitend bevindt zich de bijkeuken met witgoedaansluitingen, waterontharder, WTW-installatie en warmtepomp.
Op de eerste verdieping zijn vier ruime slaapkamers aanwezig, allemaal netjes afgewerkt. De badkamer is in 2023 vernieuwd en ingericht met een ligbad, inloopdouche, vloerverwarming, designradiator, verlichte spiegel en toilet.
De tweede verdieping is een volwaardige woonlaag met een dakkapel wat voor zorgt voor veel lichtinval. Hier is een ruime slaapkamer gerealiseerd met een eigen badkamer, voorzien van een inloopdouche en wastafel. Daarnaast is er extra bergruimte en bevinden zich hier de installaties voor de mechanische ventilatie. Aan de achterzijde zijn elektrisch bedienbare screens aanwezig.
RONDOM DE WONING
De achtertuin is verzorgd aangelegd en bestaat uit een prettige combinatie van bestrating en groen. Direct achter de woning is ruimte voor een terras en het gazon zorgt voor een open uitstraling. De tuin is praktisch ingedeeld en biedt een fijne mate van privacy.
Achter in de tuin staat de vrijstaande garage, geschikt voor opslag, fietsen of hobbygebruik.
ZUIDHORN
Zuidhorn is een geliefd dorp met een prettige mix van rust, ruimte en voorzieningen. Je vindt er diverse supermarkten, winkels, basisscholen en sportverenigingen, maar ook een treinstation met een directe verbinding naar Groningen. De stad Groningen is met de trein in ongeveer 9 minuten te bereiken, met de auto in circa 15 minuten en met de fiets in zo’n 35 minuten.
Zuidhorn heeft daarnaast een actief verenigingsleven en verschillende gezellige eetgelegenheden. Het is een dorp waar je het dorpsgevoel ervaart, maar toch dichtbij de stad woont.
Nieuwsgierig geworden? Maak dan een afspraak voor een bezichtiging en ervaar zelf het comfort van deze woning.
Specificaties
Over dit object
Overdracht
| Status | beschikbaar |
|---|---|
| Prijs | € 459.000 k.k. |
Bouw
| Bouwjaar | 1972 |
|---|---|
| Bouwvorm | bestaande bouw |
| Type Object | Woonhuis |
| Hoofdfunctie | Woonruimte |
Indeling
| Woonoppervlakte | 149 m² |
|---|---|
| Perceeloppervlakte | 347 m² |
| Woning Inhoud | 518 m³ |
| Kamers | 6 (5 slaapkamers) |
Energie
| Energielabel | A++ |
|---|
Plan een bezichtiging
voor: Troelstraweg 11
Jouw NVM makelaar:
Dijkstra Makelaardij & Financieel advies















































































































Refresh to make it work.
Refresh to make it work.