

- Home
- Aanbod
- Koopaanbod
- Frankrijkerlaan 2 54
Frankrijkerlaan 2 54
ZUIDHORN
Dit nette 2-kamerappartement aan de Frankrijkerlaan 2-54 in Zuidhorn is gelegen in het geliefde complex De Eiberhof. Hier woon je rustig en met alle voorzieningen binnen handbereik. Het appartement beschikt over een lichte woonkamer, moderne keuken een nette badkamer en 1 slaapkamer. Een fijne plek voor wie comfortabel en zorgeloos wil wonen in een prettige woonomgeving.
Eerst enkele pluspunten op een rij:
+ Ruime en lichte woonkamer
+ Moderne keuken, vernieuw in 2023
+ Toilet vernieuwd in 2023
+ Eigen inpandige garage en berging
+ Actieve en gezonde VvE
+ Vlakbij het centrum van Zuidhorn
INDELING
Bij binnenkomst in de afgesloten centrale entree van het gebouw tref je de postbussen, twee liften, een trapopgang en een video-intercomsysteem. Vanuit deze hal heb je ook toegang tot de parkachtige binnentuin.
INDELING APPARTEMENT
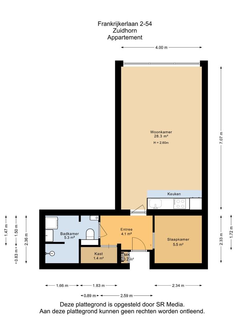
Je komt binnen in de hal, die toegang geeft tot alle vertrekken. De woonkamer is heerlijk licht dankzij de grote raampartij en biedt ruimte voor een zit- en eethoek. De open keuken sluit hier direct op aan en heeft een moderne uitstraling. De keuken is voorzien van diverse inbouwapparatuur, waaronder een oven, afzuigkap, inductiekookplaat en koelkast.
De slaapkamer is compact en praktisch. De badkamer is netjes afgewerkt en voorzien van een douche, wastafel en toilet. Tevens bevindt zich hier de opstelling voor de wasmachine en droger.
Daarnaast beschikt het appartement over een eigen garage en een berging. Het hebben van een eigen garage in dit complex is vrij uniek, daar zijn er slechts 21 van in het gehele complex.
ZUIDHORN
Zuidhorn is een levendig dorp met een compleet aanbod aan voorzieningen: winkels, supermarkten, basisscholen, sportclubs en horeca zijn allemaal dichtbij. Ook qua bereikbaarheid zit je hier goed. Het station ligt op loopafstand, vanwaar je binnen ca. 9 minuten in Groningen bent. Met de auto is dat ongeveer 20 minuten
EXTRA INFORMATIE
* De minimale leeftijd voor eigendom en/of bewoning is 45 jaar
* Parkeren op eigen terrein.
* De zonnepanelen op het dak van het appartementencomplex zorgt voor een collectieve kostenbesparing.
* In het souterrain bevindt zich naast een eigen berging ook een gezamenlijk opstel- & oplaadpunt voor fietsen en scootmobielen.
* Het complex wordt verwarmd middels blokverwarming.
* Er is een algemene ruimte aanwezig t.b.v. gezellige koffieochtenden, een verjaardag óf een bijeenkomst.
Benieuwd geworden naar dit appartement in de Eiberhof? Neem snel contact met ons op voor een bezichtiging!
Lees meer
Minder
Eerst enkele pluspunten op een rij:
+ Ruime en lichte woonkamer
+ Moderne keuken, vernieuw in 2023
+ Toilet vernieuwd in 2023
+ Eigen inpandige garage en berging
+ Actieve en gezonde VvE
+ Vlakbij het centrum van Zuidhorn
INDELING
Bij binnenkomst in de afgesloten centrale entree van het gebouw tref je de postbussen, twee liften, een trapopgang en een video-intercomsysteem. Vanuit deze hal heb je ook toegang tot de parkachtige binnentuin.
INDELING APPARTEMENT
Je komt binnen in de hal, die toegang geeft tot alle vertrekken. De woonkamer is heerlijk licht dankzij de grote raampartij en biedt ruimte voor een zit- en eethoek. De open keuken sluit hier direct op aan en heeft een moderne uitstraling. De keuken is voorzien van diverse inbouwapparatuur, waaronder een oven, afzuigkap, inductiekookplaat en koelkast.
De slaapkamer is compact en praktisch. De badkamer is netjes afgewerkt en voorzien van een douche, wastafel en toilet. Tevens bevindt zich hier de opstelling voor de wasmachine en droger.
Daarnaast beschikt het appartement over een eigen garage en een berging. Het hebben van een eigen garage in dit complex is vrij uniek, daar zijn er slechts 21 van in het gehele complex.
ZUIDHORN
Zuidhorn is een levendig dorp met een compleet aanbod aan voorzieningen: winkels, supermarkten, basisscholen, sportclubs en horeca zijn allemaal dichtbij. Ook qua bereikbaarheid zit je hier goed. Het station ligt op loopafstand, vanwaar je binnen ca. 9 minuten in Groningen bent. Met de auto is dat ongeveer 20 minuten
EXTRA INFORMATIE
* De minimale leeftijd voor eigendom en/of bewoning is 45 jaar
* Parkeren op eigen terrein.
* De zonnepanelen op het dak van het appartementencomplex zorgt voor een collectieve kostenbesparing.
* In het souterrain bevindt zich naast een eigen berging ook een gezamenlijk opstel- & oplaadpunt voor fietsen en scootmobielen.
* Het complex wordt verwarmd middels blokverwarming.
* Er is een algemene ruimte aanwezig t.b.v. gezellige koffieochtenden, een verjaardag óf een bijeenkomst.
Benieuwd geworden naar dit appartement in de Eiberhof? Neem snel contact met ons op voor een bezichtiging!
Specificaties
Over dit object
Overdracht
| Status | beschikbaar |
|---|---|
| Prijs | € 169.500 k.k. |
Bouw
| Bouwjaar | 1971 |
|---|---|
| Bouwvorm | bestaande bouw |
| Type Object | Appartement |
| Hoofdfunctie | Woonruimte |
Indeling
| Woonoppervlakte | 47 m² |
|---|---|
| Woning Inhoud | 154 m³ |
| Kamers | 2 (1 slaapkamers) |
Energie
| Energielabel | D |
|---|
Plan een bezichtiging
voor: Frankrijkerlaan 2 54
Jouw NVM makelaar:
Dijkstra Makelaardij & Financieel advies

















































Refresh to make it work.
Refresh to make it work.