

- Home
- Aanbod
- Koopaanbod
- Zuiderweg 143
Zuiderweg 143
GRONINGEN
Starters opgelet!
Ben je op zoek naar een maisonnette met lekker veel ruimte, twee slaapkamers, twee balkons en een eigen berging? Dan is dit je kans! Met een woonoppervlakte van ruim 61 m², kunststof kozijnen en HR++ glas zit je hier goed.
Eerst enkele pluspunten op een rij:
+ Twee slaapkamers op de bovenverdieping
+ Vrijwel volledig voorzien van kunststof kozijnen met HR++ beglazing (geplaatst in 2025)
+ Twee balkons
+ Eigen berging van ruim 6 m²
+ Veel lichtinval door grote raampartijen
+ Supermarkt en voorzieningen op loopafstand
INDELING
Via het afgesloten portiek met intercom en brievenbussen bereik je het trappenhuis naar de woning. Op de begane grond is er een eigen berging aanwezig.
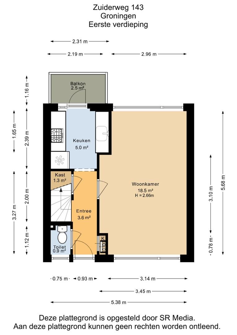
Op de derde woonlaag stap je de maisonnette binnen via de hal met meterkast, trapkast en toilet. De woonkamer van circa 19 m² is heerlijk licht dankzij de grote raampartijen aan beide zijden. De keuken bevindt zich aan de achterzijde en is voorzien van een eigen balkon.
Een verdieping hoger vind je twee slaapkamers (circa 10 m² en 8 m²) en de badkamer met douche en wastafel. In de aparte wasruimte met witgoedaansluiting en cv-opstelling is ook het tweede balkon bereikbaar.
RONDOM DE WONING
Aan de achterzijde van de woning bevinden zich twee balkons met uitzicht op groen, waar je heerlijk buiten kunt zitten. In het souterrain bevindt zich een eigen berging van ruim 6 m², bereikbaar via de centrale portiek. Ideaal voor fietsen, gereedschap of andere opslag.
GRONINGEN
Hoogkerk ligt aan de westzijde van de stad Groningen. In de directe omgeving vind je voorzieningen zoals een supermarkt, scholen, sportverenigingen en een gezondheidscentrum. Met de fiets ben je in ongeveer 20 minuten in het centrum van Groningen. Met de auto doe je er zo’n 10 minuten over en ook met het openbaar vervoer is de binnenstad goed bereikbaar.
Ben je enthousiast geworden over deze maisonnette aan de Zuiderweg? Neem dan gerust contact op met ons kantoor voor meer informatie of om een bezichtiging in te plannen.
Lees meer
Minder
Ben je op zoek naar een maisonnette met lekker veel ruimte, twee slaapkamers, twee balkons en een eigen berging? Dan is dit je kans! Met een woonoppervlakte van ruim 61 m², kunststof kozijnen en HR++ glas zit je hier goed.
Eerst enkele pluspunten op een rij:
+ Twee slaapkamers op de bovenverdieping
+ Vrijwel volledig voorzien van kunststof kozijnen met HR++ beglazing (geplaatst in 2025)
+ Twee balkons
+ Eigen berging van ruim 6 m²
+ Veel lichtinval door grote raampartijen
+ Supermarkt en voorzieningen op loopafstand
INDELING
Via het afgesloten portiek met intercom en brievenbussen bereik je het trappenhuis naar de woning. Op de begane grond is er een eigen berging aanwezig.
Op de derde woonlaag stap je de maisonnette binnen via de hal met meterkast, trapkast en toilet. De woonkamer van circa 19 m² is heerlijk licht dankzij de grote raampartijen aan beide zijden. De keuken bevindt zich aan de achterzijde en is voorzien van een eigen balkon.
Een verdieping hoger vind je twee slaapkamers (circa 10 m² en 8 m²) en de badkamer met douche en wastafel. In de aparte wasruimte met witgoedaansluiting en cv-opstelling is ook het tweede balkon bereikbaar.
RONDOM DE WONING
Aan de achterzijde van de woning bevinden zich twee balkons met uitzicht op groen, waar je heerlijk buiten kunt zitten. In het souterrain bevindt zich een eigen berging van ruim 6 m², bereikbaar via de centrale portiek. Ideaal voor fietsen, gereedschap of andere opslag.
GRONINGEN
Hoogkerk ligt aan de westzijde van de stad Groningen. In de directe omgeving vind je voorzieningen zoals een supermarkt, scholen, sportverenigingen en een gezondheidscentrum. Met de fiets ben je in ongeveer 20 minuten in het centrum van Groningen. Met de auto doe je er zo’n 10 minuten over en ook met het openbaar vervoer is de binnenstad goed bereikbaar.
Ben je enthousiast geworden over deze maisonnette aan de Zuiderweg? Neem dan gerust contact op met ons kantoor voor meer informatie of om een bezichtiging in te plannen.
Specificaties
Over dit object
Overdracht
| Status | verkocht onder voorbehoud |
|---|---|
| Prijs | € 215.000 k.k. |
Bouw
| Bouwjaar | 1966 |
|---|---|
| Bouwvorm | bestaande bouw |
| Type Object | Appartement |
| Hoofdfunctie | Woonruimte |
Indeling
| Woonoppervlakte | 61 m² |
|---|---|
| Perceeloppervlakte | 1325 m² |
| Woning Inhoud | 202 m³ |
| Kamers | 4 (2 slaapkamers) |
Energie
| Energielabel | C |
|---|
Heb je vragen?
Neem contact met ons op.
Jouw NVM makelaar:
Dijkstra Makelaardij & Financieel advies




































































Refresh to make it work.
Refresh to make it work.