

- Home
- Aanbod
- Koopaanbod
- Vlet 5
Vlet 5
ZUIDHORN
Ruimte, rust en comfort aan De Vlet 5 in Zuidhorn
Ben je op zoek naar een verrassend ruime én goed onderhouden woning met een royale tuin en een praktische indeling? Dan is De Vlet 5 in Zuidhorn echt iets voor jou. Met een woonoppervlakte van maar liefst 182 m², vijf slaapkamers, een riante woonkamer en een garage heb je hier alle ruimte die je je kunt wensen. Voeg daar de rustige ligging én de uitstekende verbinding met Groningen aan toe, en je hebt de ideale woonplek!
Eerst enkele pluspunten op een rij:
+ Royale woonkamer met speelse erker
+ Grote open keuken met diverse inbouwapparatuur
+ Vijf volwaardige slaapkamers, waarvan de zolderkamer écht een pareltje is
+ Verzorgde achtertuin met veel privacy en achterom
+ Ruime garage én carport aan de voorzijde
+ Gelegen in de kindvriendelijke en groene Botenbuurt
+ Speeltuin ín de straat voor de kleinsten
INDELING
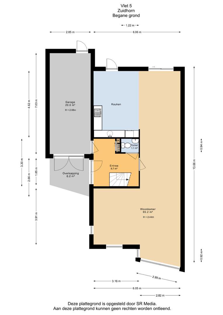
Je komt binnen in een lichte hal met de meterkast, het toilet en de trapopgang naar de verdieping. Vanuit hier stap je de royale woonkamer in. Aan de voorzijde van de woning bevindt zich het zitgedeelte, terwijl je aan de achterzijde de grote open keuken en eethoek vindt. Hier zorgt een schuifpui voor veel lichtinval en directe toegang tot de tuin. De keuken is praktisch ingericht en uitgerust met een koelkast met vriesvakken, magnetron, oven, vaatwasser, 4-pits gasfornuis, afzuigkap, voorzien van diverse kast en laderuimte.
De begane grond wordt compleet gemaakt door middel van een ruime garage, die o.a. via de hal toegankelijk is. De garage is voorzien van een nieuw dak (2025), geïsoleerde garagedeuren, en een geïsoleerde betonvloer.
Op de eerste verdieping vind je vier ruime slaapkamers van respectievelijk 11 m², 13 m², 12 m² en 10 m². Alle kamers zijn netjes afgewerkt en geschikt als slaap-, werk- of hobbykamer. De badkamer beschikt over een ligbad, douche, wastafel en 2e toilet.
De zolderverdieping beschikt over een overloop met witgoedaansluitingen, een WTW-installatie en een cv-ketel. De lichte overloop is daarnaast groot genoeg om als thuiswerkplek of sportruimte te dienen, mede gezien de vele lichtinval door de aanwezige dakkapel Daarnaast bevindt zich hier een royale vijfde slaapkamer van maar liefst 24 m² aan de voorzijde van de woning.
RONDOM DE WONING
De achtertuin is verzorgd en sfeervol aangelegd met een combinatie van groen, bestrating en borders. Dankzij de hoge begroeiing rondom geniet je hier volop van rust en privacy. Er is alle ruimte voor een grote eettafel of loungeset om op zonnige dagen van het buitenleven te genieten. Via de achterom heb je gemakkelijk toegang tot de tuin.
ZUIDHORN
De woning ligt in de populaire Botenbuurt, een rustige en groene woonwijk en een vriendelijke sfeer. In de buurt vind je speeltuintjes, wandelpaden en veel ruimte om buiten te leven. Een ideale omgeving voor wie op zoek is naar rust en comfort, maar toch dicht bij voorzieningen wil wonen.
Zuidhorn is een geliefde woonplaats met een groene, dorpse sfeer en alle belangrijke voorzieningen binnen handbereik. Je vindt er supermarkten, winkels, een zwembad en diverse basisscholen. Voor sportliefhebbers zijn er volop mogelijkheden, met verenigingen voor onder andere voetbal, hockey, korfbal en tennis. Ook zijn er gezellige horecagelegenheden en een levendig dorpscentrum. Dankzij het station ben je binnen 10 minuten met de trein in Groningen. Ook met de auto of fiets is de stad goed bereikbaar.
Nieuwsgierig geworden? Maak snel een afspraak en ontdek zelf wat deze fijne woning allemaal te bieden heeft!
Lees meer
Minder
Ben je op zoek naar een verrassend ruime én goed onderhouden woning met een royale tuin en een praktische indeling? Dan is De Vlet 5 in Zuidhorn echt iets voor jou. Met een woonoppervlakte van maar liefst 182 m², vijf slaapkamers, een riante woonkamer en een garage heb je hier alle ruimte die je je kunt wensen. Voeg daar de rustige ligging én de uitstekende verbinding met Groningen aan toe, en je hebt de ideale woonplek!
Eerst enkele pluspunten op een rij:
+ Royale woonkamer met speelse erker
+ Grote open keuken met diverse inbouwapparatuur
+ Vijf volwaardige slaapkamers, waarvan de zolderkamer écht een pareltje is
+ Verzorgde achtertuin met veel privacy en achterom
+ Ruime garage én carport aan de voorzijde
+ Gelegen in de kindvriendelijke en groene Botenbuurt
+ Speeltuin ín de straat voor de kleinsten
INDELING
Je komt binnen in een lichte hal met de meterkast, het toilet en de trapopgang naar de verdieping. Vanuit hier stap je de royale woonkamer in. Aan de voorzijde van de woning bevindt zich het zitgedeelte, terwijl je aan de achterzijde de grote open keuken en eethoek vindt. Hier zorgt een schuifpui voor veel lichtinval en directe toegang tot de tuin. De keuken is praktisch ingericht en uitgerust met een koelkast met vriesvakken, magnetron, oven, vaatwasser, 4-pits gasfornuis, afzuigkap, voorzien van diverse kast en laderuimte.
De begane grond wordt compleet gemaakt door middel van een ruime garage, die o.a. via de hal toegankelijk is. De garage is voorzien van een nieuw dak (2025), geïsoleerde garagedeuren, en een geïsoleerde betonvloer.
Op de eerste verdieping vind je vier ruime slaapkamers van respectievelijk 11 m², 13 m², 12 m² en 10 m². Alle kamers zijn netjes afgewerkt en geschikt als slaap-, werk- of hobbykamer. De badkamer beschikt over een ligbad, douche, wastafel en 2e toilet.
De zolderverdieping beschikt over een overloop met witgoedaansluitingen, een WTW-installatie en een cv-ketel. De lichte overloop is daarnaast groot genoeg om als thuiswerkplek of sportruimte te dienen, mede gezien de vele lichtinval door de aanwezige dakkapel Daarnaast bevindt zich hier een royale vijfde slaapkamer van maar liefst 24 m² aan de voorzijde van de woning.
RONDOM DE WONING
De achtertuin is verzorgd en sfeervol aangelegd met een combinatie van groen, bestrating en borders. Dankzij de hoge begroeiing rondom geniet je hier volop van rust en privacy. Er is alle ruimte voor een grote eettafel of loungeset om op zonnige dagen van het buitenleven te genieten. Via de achterom heb je gemakkelijk toegang tot de tuin.
ZUIDHORN
De woning ligt in de populaire Botenbuurt, een rustige en groene woonwijk en een vriendelijke sfeer. In de buurt vind je speeltuintjes, wandelpaden en veel ruimte om buiten te leven. Een ideale omgeving voor wie op zoek is naar rust en comfort, maar toch dicht bij voorzieningen wil wonen.
Zuidhorn is een geliefde woonplaats met een groene, dorpse sfeer en alle belangrijke voorzieningen binnen handbereik. Je vindt er supermarkten, winkels, een zwembad en diverse basisscholen. Voor sportliefhebbers zijn er volop mogelijkheden, met verenigingen voor onder andere voetbal, hockey, korfbal en tennis. Ook zijn er gezellige horecagelegenheden en een levendig dorpscentrum. Dankzij het station ben je binnen 10 minuten met de trein in Groningen. Ook met de auto of fiets is de stad goed bereikbaar.
Nieuwsgierig geworden? Maak snel een afspraak en ontdek zelf wat deze fijne woning allemaal te bieden heeft!
Specificaties
Over dit object
Overdracht
| Status | verkocht |
|---|---|
| Prijs | € 525.000 k.k. |
Bouw
| Bouwjaar | 2004 |
|---|---|
| Bouwvorm | bestaande bouw |
| Type Object | Woonhuis |
| Hoofdfunctie | Woonruimte |
Indeling
| Woonoppervlakte | 182 m² |
|---|---|
| Perceeloppervlakte | 315 m² |
| Woning Inhoud | 702 m³ |
| Kamers | 6 (5 slaapkamers) |
Energie
| Energielabel | A |
|---|
Heb je vragen?
Neem contact met ons op.
Jouw NVM makelaar:
Dijkstra Makelaardij & Financieel advies
































































































Refresh to make it work.
Refresh to make it work.