

- Home
- Aanbod
- Koopaanbod
- Ten Oeverlaan 109
Ten Oeverlaan 109
GRONINGEN
Zeer goed onderhouden, instapklaar en met veel lichtinval: welkom aan de Ten Oeverlaan 109 in Groningen! Deze moderne tussenwoning is mooi afgewerkt, voorzien van een luxe keuken en heeft een fijne tuin met overkapping. De tuin grenst aan een groenstrook met waterpartij en biedt volop privacy.
Eerst enkele pluspunten op een rij:
- Woonkamer in 2023 verbouwd en keurig afgewerkt met o.a. visgraat PVC-vloer;
- Luxe open keuken (2020) met o.a. kook/spoeleiland;
- Voor- en achtergevel in 2020 compleet vernieuwd met kunststof kozijnen en keralit gevelbekleding;
- HR++ glas met zonwerende werking: in de zomer blijft het heerlijk koel binnen;
- Nieuwe cv-installatie (2025, eigendom)
- Achtertuin met overkapping, achterom en uitzicht op groenstrook met waterpartij
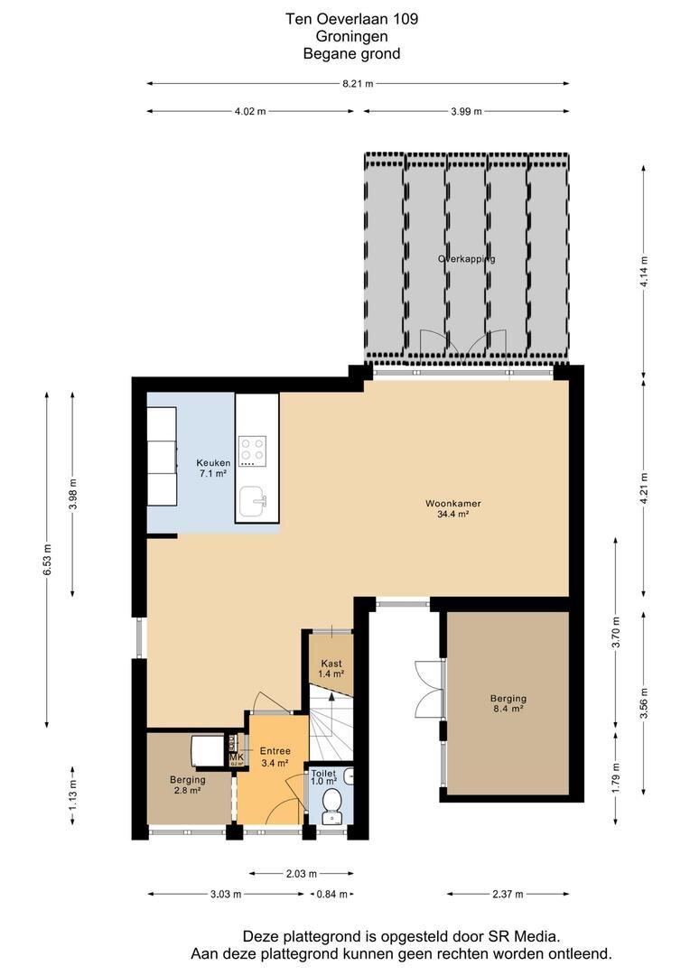
INDELING.
Je komt binnen in de hal met garderobenis, meterkast en toilet. Vanuit hier stap je de ruime, lichte woonkamer in, die in 2023 is verbouwd en strak is afgewerkt. Openslaande deuren geven toegang tot de achtertuin. De luxe open keuken (2020) is voorzien van een kookeiland met bar en inbouwapparatuur zoals een inductiekookplaat, afzuigkap, oven, Quooker, koelkast met vriesvak en vaatwasser.
Op de eerste verdieping bevinden zich drie slaapkamers en een badkamer. Alle slaapkamers zijn voorzien van een laminaatvloer en kunststof kozijnen met HR++ glas en horren. Eén van de slaapkamers aan de achterzijde grenst aan een praktische berging, die eenvoudig kan worden ingericht als walk-in closet. De badkamer beschikt over een douche, toilet en wastafel. Daarnaast is er een aparte ruimte met de cv-installatie (2025, eigendom).
De vliering biedt extra bergruimte.
RONDOM DE WONING.
De woning beschikt over een ruime voortuin en een houten berging (2020). De achtertuin ligt op het westen en heeft een fraaie overkapping met zonwerend veiligheidsglas en dimbare spotjes, waar je beschut kunt genieten. Dankzij de ligging aan een groenstrook met waterpartij geniet je hier van veel privacy en een mooi uitzicht.
GRONINGEN.
De woning ligt in de wijk Hoogkerk, een rustige en groene omgeving aan de westkant van Groningen. Dit is een kindvriendelijke buurt met meerdere speeltuintjes in de omgeving. Alle dagelijkse voorzieningen vind je binnen handbereik: supermarkten, basisscholen, kinderopvang, sportverenigingen, horeca en huisartspraktijken liggen op loop- of fietsafstand. Voor ontspanning en recreatie is de Ruskenveense Plas ideaal, op slechts enkele minuten wandelen. Ook het Stadspark bereik je eenvoudig met de fiets. De binnenstad van Groningen ligt op circa 18 minuten fietsen en 10 minuten met de auto. Dankzij de snelle aansluiting op de A7 en diverse bushaltes in de buurt is de woning bovendien uitstekend bereikbaar.
Benieuwd of dit jouw nieuwe thuis kan worden? Maak snel een afspraak voor een bezichtiging!
Lees meer
Minder
Eerst enkele pluspunten op een rij:
- Woonkamer in 2023 verbouwd en keurig afgewerkt met o.a. visgraat PVC-vloer;
- Luxe open keuken (2020) met o.a. kook/spoeleiland;
- Voor- en achtergevel in 2020 compleet vernieuwd met kunststof kozijnen en keralit gevelbekleding;
- HR++ glas met zonwerende werking: in de zomer blijft het heerlijk koel binnen;
- Nieuwe cv-installatie (2025, eigendom)
- Achtertuin met overkapping, achterom en uitzicht op groenstrook met waterpartij
INDELING.
Je komt binnen in de hal met garderobenis, meterkast en toilet. Vanuit hier stap je de ruime, lichte woonkamer in, die in 2023 is verbouwd en strak is afgewerkt. Openslaande deuren geven toegang tot de achtertuin. De luxe open keuken (2020) is voorzien van een kookeiland met bar en inbouwapparatuur zoals een inductiekookplaat, afzuigkap, oven, Quooker, koelkast met vriesvak en vaatwasser.
Op de eerste verdieping bevinden zich drie slaapkamers en een badkamer. Alle slaapkamers zijn voorzien van een laminaatvloer en kunststof kozijnen met HR++ glas en horren. Eén van de slaapkamers aan de achterzijde grenst aan een praktische berging, die eenvoudig kan worden ingericht als walk-in closet. De badkamer beschikt over een douche, toilet en wastafel. Daarnaast is er een aparte ruimte met de cv-installatie (2025, eigendom).
De vliering biedt extra bergruimte.
RONDOM DE WONING.
De woning beschikt over een ruime voortuin en een houten berging (2020). De achtertuin ligt op het westen en heeft een fraaie overkapping met zonwerend veiligheidsglas en dimbare spotjes, waar je beschut kunt genieten. Dankzij de ligging aan een groenstrook met waterpartij geniet je hier van veel privacy en een mooi uitzicht.
GRONINGEN.
De woning ligt in de wijk Hoogkerk, een rustige en groene omgeving aan de westkant van Groningen. Dit is een kindvriendelijke buurt met meerdere speeltuintjes in de omgeving. Alle dagelijkse voorzieningen vind je binnen handbereik: supermarkten, basisscholen, kinderopvang, sportverenigingen, horeca en huisartspraktijken liggen op loop- of fietsafstand. Voor ontspanning en recreatie is de Ruskenveense Plas ideaal, op slechts enkele minuten wandelen. Ook het Stadspark bereik je eenvoudig met de fiets. De binnenstad van Groningen ligt op circa 18 minuten fietsen en 10 minuten met de auto. Dankzij de snelle aansluiting op de A7 en diverse bushaltes in de buurt is de woning bovendien uitstekend bereikbaar.
Benieuwd of dit jouw nieuwe thuis kan worden? Maak snel een afspraak voor een bezichtiging!
Specificaties
Over dit object
Overdracht
| Status | verkocht |
|---|---|
| Prijs | € 350.000 k.k. |
Bouw
| Bouwjaar | 1975 |
|---|---|
| Bouwvorm | bestaande bouw |
| Type Object | Woonhuis |
| Hoofdfunctie | Woonruimte |
Indeling
| Woonoppervlakte | 103 m² |
|---|---|
| Perceeloppervlakte | 201 m² |
| Woning Inhoud | 395 m³ |
| Kamers | 4 (3 slaapkamers) |
Energie
| Energielabel | C |
|---|
Heb je vragen?
Neem contact met ons op.
Jouw NVM makelaar:
Dijkstra Makelaardij & Financieel advies






































































Refresh to make it work.
Refresh to make it work.