

- Home
- Aanbod
- Koopaanbod
- Stationsstraat 14
Stationsstraat 14
GRIJPSKERK
"POELSTEE"
Op een markante plek in het mooie Grijpskerk, tegenover de kop van het Poeldiep staat een prachtig herenhuis, genaamd de "Poelstee". Een schitterend woonhuis met bijna 300 vierkante meter woonoppervlak, en ook nog eens keurig onderhouden. Vele authentieke details van deze 19e eeuwse woning zijn behouden gebleven of met behoud van karakter en stijl gerestaureerd. Denk hierbij aan de prachtige luiken en blinden die de woning zowel binnen als buiten een karakteristieke uitstraling geven, hoge plafonds met in het voorhuis prachtig gerestaureerde plafonds met sierlijke ornamenten, fraaie glas-in-loodelementen van de entree en in de hal en krachtige schouwen in de woonkamer en het kantoor.
Deze woning biedt een prachtig thuis voor een brede doelgroep. Met 4 slaapkamers, en de mogelijkheid daar op z'n minst nog 2 bij te realiseren, is de woning uitermate geschikt voor een (groot) gezin. Met 2 slaapkamers en badkamers op de begane grond is de woning echter ook erg geschikt als levensloopbestendige woning. De riante achtertuin, met een grote in stijl gebouwde overkapping, nodigt enorm uit tot het gezellig hosten van partijen en het ontvangen van vele gasten.
Alvast een aantal pluspunten van deze woning op een rij:
+ 10 zonnepanelen
+ CV-ketel 2024
+ Schilderwerk rondom 2024
+ Levensloopbestendig
+ Meerdere extra slaapkamers mogelijk
+ Ruime kelder van 12 vierkante meter (1,85 hoog)
+ Grotendeels voorzien van HR++ glas
De indeling van deze woning laat zich het best als volgt omschrijven:
BEGANE GROND
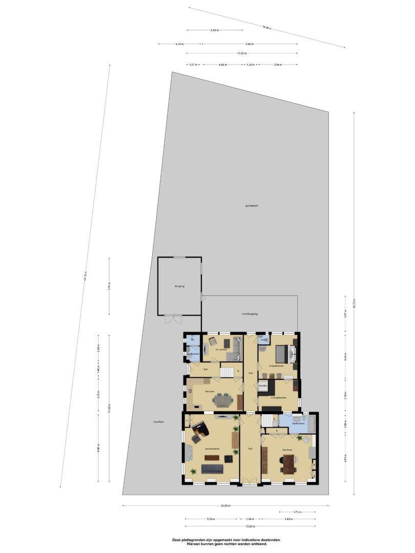
De statige entree geeft toegang tot de centrale hal, met aan weerszijden een kamer. Aan de linkerzijde van de hal treffen we een prachtige woonkamer van ca. 36 vierkante meter voorzien van hoge plafonds, grote raampartijen en met uitzicht over het Poeldiep, zonder directe overburen. Aan de rechterzijde van de hal treffen we het kantoor/hobbykamer van ca. 26 vierkante meter, eveneens met grote raampartijen en hetzelfde fraaie uitzicht. Vanuit deze kamer is tevens één van de badkamers bereikbaar, voorzien van een bad met douche, toilet, en wastafel. De hal geeft tevens nog toegang naar de verdieping van het voorhuis middels een vaste trap, en doorgang naar het achterhuis.
Het achterhuis is ook voorzien van een centrale hal, met aan de linkerzijde de keuken, die ook vanuit de woonkamer toegankelijk is. De ruime woonkeuken is voorzien van een nette keukenopstelling met diverse inbouwapparatuur, oerdegelijk fornuis met oven en afzuigkap, granieten aanrechtblad en diverse kastruimte en een handige inloop-/provisiekast. Via de keuken is nog een derde hal bereikbaar, die dient als zij-entree en ook toegang geeft tot de tweede badkamer voorzien van inloopdouche, wastafel en toilet, én één van de twee slaapkamers die de begane grond rijk is. Deze kamer is ook uitermate geschikt als TV-/ of hobbykamer, waartoe die thans is bestemd. Vanuit deze derde hal is tevens via een vaste trap de verdieping boven het achterhuis toegankelijk.
Aan de rechterzijde van de achterste centrale hal bevinden zich de walk-in-closet, gerealiseerd in de opkamer boven de kelder, toegang naar de ondergelegen kelder, een separaat 3e toilet en toegang tot de 2e slaapkamer op de begane grond die ook weer verbonden is met de walk-in-closet en indirect met de badkamer op de begane grond.
VERDIEPING
De verdieping van zowel het voor- als het achterhuis zijn bereikbaar met een vaste trap. Beide delen zijn ook met elkaar verbonden waardoor er een prachtig ruime en multifunctionele verdieping is ontstaan. De verdieping boven het voorhuis is een riante open ruimte met schitterende doorgemetselde dakkapel met wederom uitzicht over het Poeldiep. Deze ruimte heeft een functioneel oppervlak van meer dan 60 vierkante meter en kan heel eenvoudig meerdere extra kamers herbergen maar wordt momenteel gebruikt als sport- en opslagruimte. Het dak van het voorhuis is ook compleet geïsoleerd. Zowel via een verbinding met deze ruimte alsmede de eigen vaste trap is de verdieping boven het achterhuis toegankelijk. De overloop daar is voorzien van een dakkapel en biedt toegang tot een tweetal sfeervolle slaapkamers. De achterste slaapkamer is voorzien van een mooi brede dakkapel van 3 meter die uitzicht geeft over de achtertuin.
RONDOM
De bescheiden voortuin vergt weinig onderhoud, maar geeft net dat beetje extra cachet aan de uitstraling van de toch al prachtige voorgevel van het huis. Aan de linkerzijde treffen de een ruime oprit met plek voor tot wel 3 auto's, met daarachter een achterom naar de achtertuin en de vrijstaande stenen garage die ook plek biedt aan een auto, naast de nodige opslag voor tuingereedschappen.
Eyecatcher in de achtertuin is de schitterend houten overkapping van 36 vierkante meter, waar ook op subtiele wijze de zonnepanelen op zijn gelegd. Deze overkapping biedt zicht op de omsloten achtertuin op het zonnige westen voorzien van diverse borders met veel vaste planten en struiken en een mooi gazon.
GRIJPSKERK
Grijpskerk kent een goed voorzieningenniveau waaronder NS-treinstation (Groningen 16 minuten, Leeuwarden 34 minuten), grote supermarkt, een onvolprezen slager en bakker, sportverenigingen, buitenzwembad, en zowel basis- als voortgezet onderwijs. Kortom, een hele aantrekkelijke woonplaats die veel te bieden heeft.
INTERESSE?
Bent u nieuwsgierig geworden? Graag nodigen wij u uit voor een bezichtiging, deze woning is zo uniek, die moet u zelf komen ervaren!
Lees meer
Minder
Op een markante plek in het mooie Grijpskerk, tegenover de kop van het Poeldiep staat een prachtig herenhuis, genaamd de "Poelstee". Een schitterend woonhuis met bijna 300 vierkante meter woonoppervlak, en ook nog eens keurig onderhouden. Vele authentieke details van deze 19e eeuwse woning zijn behouden gebleven of met behoud van karakter en stijl gerestaureerd. Denk hierbij aan de prachtige luiken en blinden die de woning zowel binnen als buiten een karakteristieke uitstraling geven, hoge plafonds met in het voorhuis prachtig gerestaureerde plafonds met sierlijke ornamenten, fraaie glas-in-loodelementen van de entree en in de hal en krachtige schouwen in de woonkamer en het kantoor.
Deze woning biedt een prachtig thuis voor een brede doelgroep. Met 4 slaapkamers, en de mogelijkheid daar op z'n minst nog 2 bij te realiseren, is de woning uitermate geschikt voor een (groot) gezin. Met 2 slaapkamers en badkamers op de begane grond is de woning echter ook erg geschikt als levensloopbestendige woning. De riante achtertuin, met een grote in stijl gebouwde overkapping, nodigt enorm uit tot het gezellig hosten van partijen en het ontvangen van vele gasten.
Alvast een aantal pluspunten van deze woning op een rij:
+ 10 zonnepanelen
+ CV-ketel 2024
+ Schilderwerk rondom 2024
+ Levensloopbestendig
+ Meerdere extra slaapkamers mogelijk
+ Ruime kelder van 12 vierkante meter (1,85 hoog)
+ Grotendeels voorzien van HR++ glas
De indeling van deze woning laat zich het best als volgt omschrijven:
BEGANE GROND
De statige entree geeft toegang tot de centrale hal, met aan weerszijden een kamer. Aan de linkerzijde van de hal treffen we een prachtige woonkamer van ca. 36 vierkante meter voorzien van hoge plafonds, grote raampartijen en met uitzicht over het Poeldiep, zonder directe overburen. Aan de rechterzijde van de hal treffen we het kantoor/hobbykamer van ca. 26 vierkante meter, eveneens met grote raampartijen en hetzelfde fraaie uitzicht. Vanuit deze kamer is tevens één van de badkamers bereikbaar, voorzien van een bad met douche, toilet, en wastafel. De hal geeft tevens nog toegang naar de verdieping van het voorhuis middels een vaste trap, en doorgang naar het achterhuis.
Het achterhuis is ook voorzien van een centrale hal, met aan de linkerzijde de keuken, die ook vanuit de woonkamer toegankelijk is. De ruime woonkeuken is voorzien van een nette keukenopstelling met diverse inbouwapparatuur, oerdegelijk fornuis met oven en afzuigkap, granieten aanrechtblad en diverse kastruimte en een handige inloop-/provisiekast. Via de keuken is nog een derde hal bereikbaar, die dient als zij-entree en ook toegang geeft tot de tweede badkamer voorzien van inloopdouche, wastafel en toilet, én één van de twee slaapkamers die de begane grond rijk is. Deze kamer is ook uitermate geschikt als TV-/ of hobbykamer, waartoe die thans is bestemd. Vanuit deze derde hal is tevens via een vaste trap de verdieping boven het achterhuis toegankelijk.
Aan de rechterzijde van de achterste centrale hal bevinden zich de walk-in-closet, gerealiseerd in de opkamer boven de kelder, toegang naar de ondergelegen kelder, een separaat 3e toilet en toegang tot de 2e slaapkamer op de begane grond die ook weer verbonden is met de walk-in-closet en indirect met de badkamer op de begane grond.
VERDIEPING
De verdieping van zowel het voor- als het achterhuis zijn bereikbaar met een vaste trap. Beide delen zijn ook met elkaar verbonden waardoor er een prachtig ruime en multifunctionele verdieping is ontstaan. De verdieping boven het voorhuis is een riante open ruimte met schitterende doorgemetselde dakkapel met wederom uitzicht over het Poeldiep. Deze ruimte heeft een functioneel oppervlak van meer dan 60 vierkante meter en kan heel eenvoudig meerdere extra kamers herbergen maar wordt momenteel gebruikt als sport- en opslagruimte. Het dak van het voorhuis is ook compleet geïsoleerd. Zowel via een verbinding met deze ruimte alsmede de eigen vaste trap is de verdieping boven het achterhuis toegankelijk. De overloop daar is voorzien van een dakkapel en biedt toegang tot een tweetal sfeervolle slaapkamers. De achterste slaapkamer is voorzien van een mooi brede dakkapel van 3 meter die uitzicht geeft over de achtertuin.
RONDOM
De bescheiden voortuin vergt weinig onderhoud, maar geeft net dat beetje extra cachet aan de uitstraling van de toch al prachtige voorgevel van het huis. Aan de linkerzijde treffen de een ruime oprit met plek voor tot wel 3 auto's, met daarachter een achterom naar de achtertuin en de vrijstaande stenen garage die ook plek biedt aan een auto, naast de nodige opslag voor tuingereedschappen.
Eyecatcher in de achtertuin is de schitterend houten overkapping van 36 vierkante meter, waar ook op subtiele wijze de zonnepanelen op zijn gelegd. Deze overkapping biedt zicht op de omsloten achtertuin op het zonnige westen voorzien van diverse borders met veel vaste planten en struiken en een mooi gazon.
GRIJPSKERK
Grijpskerk kent een goed voorzieningenniveau waaronder NS-treinstation (Groningen 16 minuten, Leeuwarden 34 minuten), grote supermarkt, een onvolprezen slager en bakker, sportverenigingen, buitenzwembad, en zowel basis- als voortgezet onderwijs. Kortom, een hele aantrekkelijke woonplaats die veel te bieden heeft.
INTERESSE?
Bent u nieuwsgierig geworden? Graag nodigen wij u uit voor een bezichtiging, deze woning is zo uniek, die moet u zelf komen ervaren!
Specificaties
Over dit object
Overdracht
| Status | verkocht onder voorbehoud |
|---|---|
| Prijs | € 659.000 k.k. |
Bouw
| Bouwjaar | 1877 |
|---|---|
| Bouwvorm | bestaande bouw |
| Type Object | Woonhuis |
| Hoofdfunctie | Woonruimte |
Indeling
| Woonoppervlakte | 292 m² |
|---|---|
| Perceeloppervlakte | 757 m² |
| Woning Inhoud | 1127 m³ |
| Kamers | 7 (4 slaapkamers) |
Energie
| Energielabel | D |
|---|
Heb je vragen?
Neem contact met ons op.
Jouw NVM makelaar:
Dijkstra Makelaardij & Financieel advies




























































































Refresh to make it work.
Refresh to make it work.





















