

- Home
- Aanbod
- Koopaanbod
- Nieuwstraat 19
Nieuwstraat 19
NOORDHORN
Op zoek naar een vrijstaande woning met veel ruimte, groen en mogelijkheden?
Aan de Nieuwstraat 19 in Noordhorn vind je precies dat! Deze charmante woning uit 1968 staat op een royaal perceel van 625 m², beschikt over een grote schuur van maar liefst 65 m² en een fraai aangelegde groene tuin waar je het hele jaar door van kunt genieten. Binnen biedt de woning een prettige indeling en volop leefruimte.
Eerst enkele pluspunten op een rij:
+ Vrijstaande woning op royaal perceel van 625 m²
+ Grote schuur van 65 m² met vliering en hobbyruimte
+ Fraai aangelegde tuin rondom met meerdere terrassen
+ Drie ruime slaapkamers
+ Sfeervolle woonkamer met gaskachel
+ Keuken met composiet blad en complete inbouwapparatuur
+ Cv-ketel uit 2022 en 4 zonnepanelen
INDELING.
Je komt binnen in een ruime entree met trapopgang en meterkast. Vanuit hier zijn de badkamer en het separate toilet bereikbaar. De badkamer is netjes afgewerkt en voorzien van een ligbad, douche en wastafel. De woonkamer is licht en ruim, met plek voor zowel een zit- als eethoek. Naast de centrale verwarming zorgt een gaskachel hier voor extra sfeer en via de openslaande deuren stap je zo de tuin in.
De dichte keuken heeft een composiet werkblad en is uitgerust met diverse inbouwapparaten, waaronder een inductiekookplaat, combi-oven, afzuigkap en koel-vriescombinatie. Aansluitend vind je de bijkeuken met witgoedaansluitingen en een deur naar buiten. Onder de woning ligt een praktische kelder van circa 8 m², ideaal als voorraad- of opbergruimte.
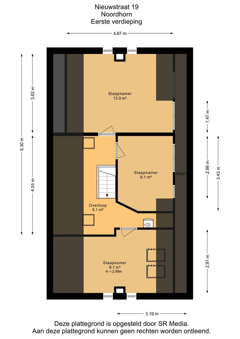
Boven bevindt zich een overloop met veel bergruimte. De grootste slaapkamer, circa 13 m², heeft dankzij de dakkapel veel licht en ruimte en is ideaal als hoofdslaapkamer. De middelste slaapkamer, circa 8,1 m², beschikt eveneens over een dakkapel en is daarmee een prettige en volwaardige slaapkamer, maar kan ook uitstekend dienen als werkkamer. De derde slaapkamer, circa 9,1 m², heeft twee dakramen die zorgen voor een mooie lichtinval en kan goed dienen als slaap-, hobby- of werkkamer.
RONDOM DE WONING.
Rondom de woning ligt een grote, groene tuin met gevarieerde, insecten- en vlindervriendelijke beplanting en meerdere terrassen. Hier is altijd wel een plekje te vinden om te ontspannen, of je nu in de zon of juist in de schaduw wilt zitten. Eén van de terrassen is voorzien van een elektrisch pergolascherm, zodat je op warme dagen comfortabel buiten kunt genieten. Op het perceel staat een indrukwekkende schuur van maar liefst 65 m², voorzien van een vliering. Deze ruimte biedt volop mogelijkheden, of je nu wilt klussen, extra opslag zoekt of een hobbyruimte wilt creëren.
Op de oprit is ruimte voor meerdere auto’s en tegenover de woning ligt een speeltuintje, ideaal voor gezinnen met kinderen. De combinatie van de royale tuin, de grote schuur en de praktische ligging maakt dit tot een plek waar je binnen én buiten alle ruimte hebt.
NOORDHORN.
Noordhorn is een sfeervol en actief dorp met een rijk verenigingsleven. Je vindt er onder andere een basisschool, sportvoorzieningen en gezellige dorpsactiviteiten. Ook is er een prachtige verswinkel waar je terecht kunt voor groente, fruit, brood, vlees en huisgemaakte soepen en maaltijden. Voor de overige dagelijkse boodschappen ligt Zuidhorn op slechts vijf minuten fietsen. Vanuit het station in Zuidhorn vertrekt een directe trein naar zowel Groningen als Leeuwarden. De stad Groningen is per auto in ongeveer vijftien minuten te bereiken. Dankzij deze gunstige ligging combineer je het rustige dorpsleven met de gemakken van de stad dichtbij.
Kom kijken en ontdek zelf de ruimte, het groen en de mogelijkheden van deze fijne woning. Maak snel een afspraak voor een bezichtiging!
Lees meer
Minder
Aan de Nieuwstraat 19 in Noordhorn vind je precies dat! Deze charmante woning uit 1968 staat op een royaal perceel van 625 m², beschikt over een grote schuur van maar liefst 65 m² en een fraai aangelegde groene tuin waar je het hele jaar door van kunt genieten. Binnen biedt de woning een prettige indeling en volop leefruimte.
Eerst enkele pluspunten op een rij:
+ Vrijstaande woning op royaal perceel van 625 m²
+ Grote schuur van 65 m² met vliering en hobbyruimte
+ Fraai aangelegde tuin rondom met meerdere terrassen
+ Drie ruime slaapkamers
+ Sfeervolle woonkamer met gaskachel
+ Keuken met composiet blad en complete inbouwapparatuur
+ Cv-ketel uit 2022 en 4 zonnepanelen
INDELING.
Je komt binnen in een ruime entree met trapopgang en meterkast. Vanuit hier zijn de badkamer en het separate toilet bereikbaar. De badkamer is netjes afgewerkt en voorzien van een ligbad, douche en wastafel. De woonkamer is licht en ruim, met plek voor zowel een zit- als eethoek. Naast de centrale verwarming zorgt een gaskachel hier voor extra sfeer en via de openslaande deuren stap je zo de tuin in.
De dichte keuken heeft een composiet werkblad en is uitgerust met diverse inbouwapparaten, waaronder een inductiekookplaat, combi-oven, afzuigkap en koel-vriescombinatie. Aansluitend vind je de bijkeuken met witgoedaansluitingen en een deur naar buiten. Onder de woning ligt een praktische kelder van circa 8 m², ideaal als voorraad- of opbergruimte.
Boven bevindt zich een overloop met veel bergruimte. De grootste slaapkamer, circa 13 m², heeft dankzij de dakkapel veel licht en ruimte en is ideaal als hoofdslaapkamer. De middelste slaapkamer, circa 8,1 m², beschikt eveneens over een dakkapel en is daarmee een prettige en volwaardige slaapkamer, maar kan ook uitstekend dienen als werkkamer. De derde slaapkamer, circa 9,1 m², heeft twee dakramen die zorgen voor een mooie lichtinval en kan goed dienen als slaap-, hobby- of werkkamer.
RONDOM DE WONING.
Rondom de woning ligt een grote, groene tuin met gevarieerde, insecten- en vlindervriendelijke beplanting en meerdere terrassen. Hier is altijd wel een plekje te vinden om te ontspannen, of je nu in de zon of juist in de schaduw wilt zitten. Eén van de terrassen is voorzien van een elektrisch pergolascherm, zodat je op warme dagen comfortabel buiten kunt genieten. Op het perceel staat een indrukwekkende schuur van maar liefst 65 m², voorzien van een vliering. Deze ruimte biedt volop mogelijkheden, of je nu wilt klussen, extra opslag zoekt of een hobbyruimte wilt creëren.
Op de oprit is ruimte voor meerdere auto’s en tegenover de woning ligt een speeltuintje, ideaal voor gezinnen met kinderen. De combinatie van de royale tuin, de grote schuur en de praktische ligging maakt dit tot een plek waar je binnen én buiten alle ruimte hebt.
NOORDHORN.
Noordhorn is een sfeervol en actief dorp met een rijk verenigingsleven. Je vindt er onder andere een basisschool, sportvoorzieningen en gezellige dorpsactiviteiten. Ook is er een prachtige verswinkel waar je terecht kunt voor groente, fruit, brood, vlees en huisgemaakte soepen en maaltijden. Voor de overige dagelijkse boodschappen ligt Zuidhorn op slechts vijf minuten fietsen. Vanuit het station in Zuidhorn vertrekt een directe trein naar zowel Groningen als Leeuwarden. De stad Groningen is per auto in ongeveer vijftien minuten te bereiken. Dankzij deze gunstige ligging combineer je het rustige dorpsleven met de gemakken van de stad dichtbij.
Kom kijken en ontdek zelf de ruimte, het groen en de mogelijkheden van deze fijne woning. Maak snel een afspraak voor een bezichtiging!
Specificaties
Over dit object
Overdracht
| Status | verkocht |
|---|---|
| Prijs | € 350.000 k.k. |
Bouw
| Bouwjaar | 1968 |
|---|---|
| Bouwvorm | bestaande bouw |
| Type Object | Woonhuis |
| Hoofdfunctie | Woonruimte |
Indeling
| Woonoppervlakte | 116 m² |
|---|---|
| Perceeloppervlakte | 625 m² |
| Woning Inhoud | 447 m³ |
| Kamers | 4 (3 slaapkamers) |
Energie
| Energielabel | C |
|---|
Heb je vragen?
Neem contact met ons op.
Jouw NVM makelaar:
Dijkstra Makelaardij & Financieel advies






































































































































Refresh to make it work.
Refresh to make it work.