

- Home
- Aanbod
- Koopaanbod
- Nieuwstraat 17
Nieuwstraat 17
NOORDHORN
Ruimte, karakter en veelzijdigheid in het dorpshart van Noordhorn
Aan de Nieuwstraat staat deze verrassend ruime woning met een prettige indeling en volop mogelijkheden. De royale woonkamer, meerdere slaapkamers en extra ruimtes zoals de kelder, vliering en een prachtige garage zorgen voor een huis dat meegroeit met verschillende woonwensen. Of je nu ruimte zoekt voor een gezin, werken aan huis of hobby’s: hier vind je het allemaal, in een fijne dorpsomgeving met Groningen op korte afstand.
Eerst enkele pluspunten op een rij:
+ Royale en lichte woonkamer met erker
+ Vier slaapkamers op de verdieping
+ Diepe achtertuin met berging en veel privacy
+ Grote garage met elektrische deur en zolder
+ Kunststof dakkapellen
+ Voorzien van 14 zonnepanelen
INDELING
Via de entree kom je in de hal, waar zich ook de trapopgang naar de eerste verdieping bevindt. Vanuit hier loop je door naar de keuken, die is ingericht met diverse inbouwapparatuur en een fraai gezoet hardstenen werkblad. Vanuit de keuken heb je toegang tot de woonkamer. Deze is royaal opgezet, heeft aan de voorzijde een sfeervolle erker en geniet dankzij de grote raampartijen van veel lichtinval. Er is meer dan genoeg ruimte voor zowel een gezellige zithoek als een eethoek.
De keuken geeft daarnaast toegang tot een tussenhal, van waaruit je de bijkeuken, het separate toilet, de badkamer en de achterdeur naar de tuin bereikt. De badkamer is voorzien van een inloopdouche en wastafel. Ook is vanuit de keuken de kelder bereikbaar.
Op de eerste verdieping geeft de overloop toegang tot vier ruime slaapkamers, waarvan enkele zijn voorzien van dakkapellen. Dit zorgt voor extra licht en een prettig ruimtegevoel. Op deze verdieping is daarnaast een separaat toilet met wastafel aanwezig, evenals een extra bergruimte.
Via een vlizotrap is de zolder bereikbaar. Deze ruimte wordt gebruikt als bergzolder en is voorzien van een dakraam en de omvormer van de zonnepanelen.
RONDOM DE WONING
Achter de woning ligt een diepe tuin met volop ruimte om van het buitenleven te genieten. Door de diepte en indeling is er mogelijkheid om meerdere terrassen te creëren, zodat je op elk moment van de dag een fijne plek in de zon of schaduw hebt. In de tuin staat een houten berging, geschikt voor fietsen en tuingereedschap.
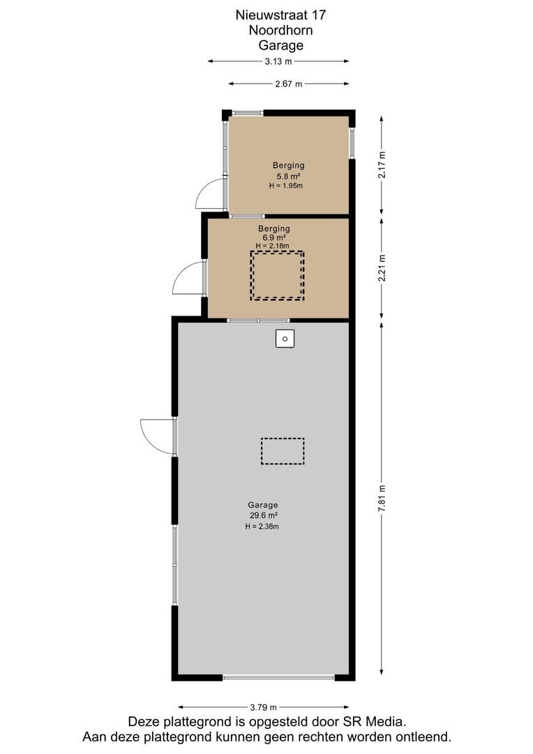
Aan de woning bevindt zich bovendien een oprit met ruimte voor het parkeren van meerdere auto’s. Daarnaast is er een ruime garage met elektrische deur en een zolder, wat zorgt voor extra gebruiks- en opslagmogelijkheden.
NOORDHORN
Noordhorn is een sfeervol en actief dorp met een rijk verenigingsleven. Je vindt er onder andere een basisschool, sportvoorzieningen en gezellige dorpsactiviteiten. Ook is er een prachtige verswinkel waar je terecht kunt voor groente, fruit, brood, vlees en huisgemaakte soepen en maaltijden. Voor de overige dagelijkse boodschappen ligt Zuidhorn op slechts vijf minuten fietsen. Vanuit het station in Zuidhorn vertrekt een directe trein naar zowel Groningen als Leeuwarden. De stad Groningen is per auto in ongeveer vijftien minuten te bereiken. Dankzij deze gunstige ligging combineer je het rustige dorpsleven met de gemakken van de stad dichtbij.
Nieuwsgierig geworden? Maak dan snel een afspraak voor een bezichtiging en ervaar zelf de ruimte en mogelijkheden van Nieuwstraat 17 in Noordhorn.
Lees meer
Minder
Aan de Nieuwstraat staat deze verrassend ruime woning met een prettige indeling en volop mogelijkheden. De royale woonkamer, meerdere slaapkamers en extra ruimtes zoals de kelder, vliering en een prachtige garage zorgen voor een huis dat meegroeit met verschillende woonwensen. Of je nu ruimte zoekt voor een gezin, werken aan huis of hobby’s: hier vind je het allemaal, in een fijne dorpsomgeving met Groningen op korte afstand.
Eerst enkele pluspunten op een rij:
+ Royale en lichte woonkamer met erker
+ Vier slaapkamers op de verdieping
+ Diepe achtertuin met berging en veel privacy
+ Grote garage met elektrische deur en zolder
+ Kunststof dakkapellen
+ Voorzien van 14 zonnepanelen
INDELING
Via de entree kom je in de hal, waar zich ook de trapopgang naar de eerste verdieping bevindt. Vanuit hier loop je door naar de keuken, die is ingericht met diverse inbouwapparatuur en een fraai gezoet hardstenen werkblad. Vanuit de keuken heb je toegang tot de woonkamer. Deze is royaal opgezet, heeft aan de voorzijde een sfeervolle erker en geniet dankzij de grote raampartijen van veel lichtinval. Er is meer dan genoeg ruimte voor zowel een gezellige zithoek als een eethoek.
De keuken geeft daarnaast toegang tot een tussenhal, van waaruit je de bijkeuken, het separate toilet, de badkamer en de achterdeur naar de tuin bereikt. De badkamer is voorzien van een inloopdouche en wastafel. Ook is vanuit de keuken de kelder bereikbaar.
Op de eerste verdieping geeft de overloop toegang tot vier ruime slaapkamers, waarvan enkele zijn voorzien van dakkapellen. Dit zorgt voor extra licht en een prettig ruimtegevoel. Op deze verdieping is daarnaast een separaat toilet met wastafel aanwezig, evenals een extra bergruimte.
Via een vlizotrap is de zolder bereikbaar. Deze ruimte wordt gebruikt als bergzolder en is voorzien van een dakraam en de omvormer van de zonnepanelen.
RONDOM DE WONING
Achter de woning ligt een diepe tuin met volop ruimte om van het buitenleven te genieten. Door de diepte en indeling is er mogelijkheid om meerdere terrassen te creëren, zodat je op elk moment van de dag een fijne plek in de zon of schaduw hebt. In de tuin staat een houten berging, geschikt voor fietsen en tuingereedschap.
Aan de woning bevindt zich bovendien een oprit met ruimte voor het parkeren van meerdere auto’s. Daarnaast is er een ruime garage met elektrische deur en een zolder, wat zorgt voor extra gebruiks- en opslagmogelijkheden.
NOORDHORN
Noordhorn is een sfeervol en actief dorp met een rijk verenigingsleven. Je vindt er onder andere een basisschool, sportvoorzieningen en gezellige dorpsactiviteiten. Ook is er een prachtige verswinkel waar je terecht kunt voor groente, fruit, brood, vlees en huisgemaakte soepen en maaltijden. Voor de overige dagelijkse boodschappen ligt Zuidhorn op slechts vijf minuten fietsen. Vanuit het station in Zuidhorn vertrekt een directe trein naar zowel Groningen als Leeuwarden. De stad Groningen is per auto in ongeveer vijftien minuten te bereiken. Dankzij deze gunstige ligging combineer je het rustige dorpsleven met de gemakken van de stad dichtbij.
Nieuwsgierig geworden? Maak dan snel een afspraak voor een bezichtiging en ervaar zelf de ruimte en mogelijkheden van Nieuwstraat 17 in Noordhorn.
Specificaties
Over dit object
Overdracht
| Status | beschikbaar |
|---|---|
| Prijs | € 439.000 k.k. |
Bouw
| Bouwjaar | 1930 |
|---|---|
| Bouwvorm | bestaande bouw |
| Type Object | Woonhuis |
| Hoofdfunctie | Woonruimte |
Indeling
| Woonoppervlakte | 140 m² |
|---|---|
| Perceeloppervlakte | 411 m² |
| Woning Inhoud | 586 m³ |
| Kamers | 5 (4 slaapkamers) |
Energie
| Energielabel | D |
|---|
Plan een bezichtiging
voor: Nieuwstraat 17
Jouw NVM makelaar:
Dijkstra Makelaardij & Financieel advies
















































































































Refresh to make it work.
Refresh to make it work.