

- Home
- Aanbod
- Koopaanbod
- Meerpaal 89
Meerpaal 89
GRONINGEN
Wonen aan de Meerpaal 89 in Groningen betekent comfortabel wonen op de vierde verdieping van een goed verzorgd appartementencomplex, met alle voorzieningen binnen handbereik. Dit lichte en ruime appartement beschikt over een royale woonkamer, twee slaapkamers én een extra werkkamer. Voeg daar een zonnig balkon op het zuiden aan toe en je hebt een woning waar je zó in wilt trekken!
Eerst enkele pluspunten op een rij:
+ Twee volwaardige slaapkamers én een aparte werkkamer
+ Moderne badkamer, gerenoveerd in 2023
+ Zonnig balkon op het zuiden
+ Goed onderhouden en instapklaar
+ HR+++ glas en vernieuwd dak (2024)
+ Inpandige berging en praktische indeling
+ Gezonde en actieve VvE
INDELING
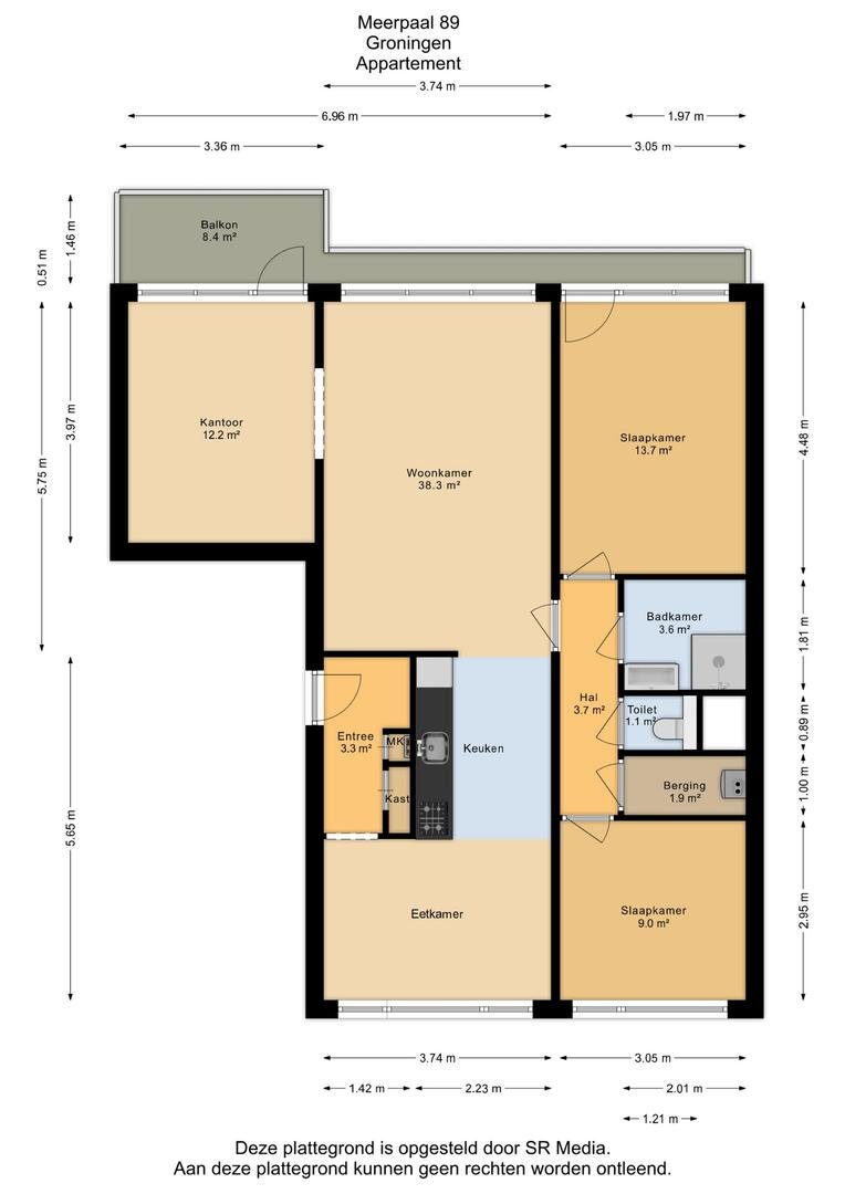
Via de centrale hal van het appartementencomplex, met brievenbussen en intercominstallatie, bereik je de woning op de vierde verdieping, via de lift of trap. De lift gaat tot de derde verdieping, daarna neem je de trap.
Bij binnenkomst in het appartement kom je in de entree met toegang tot een bergkast en meterkast. Vanuit hier loop je door naar de grote, lichte woonkamer met open keuken en eethoek. Dankzij de vele raampartijen voelt deze leefruimte extra ruim en comfortabel aan. De keuken is voorzien van diverse inbouwapparatuur: een 4-pits gaskookplaat, afzuigkap, koelkast, vriezer en vaatwasser.
Aan de woonkamer grenst een open ruimte die momenteel in gebruik is als kantoor. Dit was oorspronkelijk een derde slaapkamer en kan eenvoudig worden afgescheiden als volwaardige kamer. Vanuit de woonkamer stap je het zonnige balkon op, gelegen op het zuiden.
Via de hal bereik je de overige vertrekken: een ruime slaapkamer met toegang tot het balkon en een tweede slaapkamer aan de voorzijde van de woning. De badkamer is in 2023 vernieuwd en voorzien van een moderne inloop(regen)douche, wastafelmeubel en designradiator. Het moderne toilet is apart geplaatst en in dezelfde stijl afgewerkt. Daarnaast is er een aparte ruimte met aansluitingen voor de wasmachine en cv-ketel. Op de begane grond is bovendien een inpandige berging aanwezig, ideaal voor het stallen van fietsen of extra opslag.
LEWENBORG
De woning ligt in de wijk Lewenborg, aan de oostkant van Groningen. Een groene en rustige woonwijk met volop voorzieningen in de buurt, zoals een winkelcentrum, scholen, sportverenigingen en wijkcentrum Het Dok. De wijk is ruim opgezet, kindvriendelijk en goed bereikbaar.
Met de fiets ben je in circa 20 minuten in het centrum van Groningen. Met de auto doe je er ongeveer 15 minuten over en met het openbaar vervoer ben je er binnen 25 minuten. Een fijne plek voor wie rustig wil wonen, maar toch snel in de stad wil zijn.
Ben je benieuwd of dit fijne appartement jouw nieuwe thuis kan worden? Maak dan snel een afspraak voor een bezichtiging!
Lees meer
Minder
Eerst enkele pluspunten op een rij:
+ Twee volwaardige slaapkamers én een aparte werkkamer
+ Moderne badkamer, gerenoveerd in 2023
+ Zonnig balkon op het zuiden
+ Goed onderhouden en instapklaar
+ HR+++ glas en vernieuwd dak (2024)
+ Inpandige berging en praktische indeling
+ Gezonde en actieve VvE
INDELING
Via de centrale hal van het appartementencomplex, met brievenbussen en intercominstallatie, bereik je de woning op de vierde verdieping, via de lift of trap. De lift gaat tot de derde verdieping, daarna neem je de trap.
Bij binnenkomst in het appartement kom je in de entree met toegang tot een bergkast en meterkast. Vanuit hier loop je door naar de grote, lichte woonkamer met open keuken en eethoek. Dankzij de vele raampartijen voelt deze leefruimte extra ruim en comfortabel aan. De keuken is voorzien van diverse inbouwapparatuur: een 4-pits gaskookplaat, afzuigkap, koelkast, vriezer en vaatwasser.
Aan de woonkamer grenst een open ruimte die momenteel in gebruik is als kantoor. Dit was oorspronkelijk een derde slaapkamer en kan eenvoudig worden afgescheiden als volwaardige kamer. Vanuit de woonkamer stap je het zonnige balkon op, gelegen op het zuiden.
Via de hal bereik je de overige vertrekken: een ruime slaapkamer met toegang tot het balkon en een tweede slaapkamer aan de voorzijde van de woning. De badkamer is in 2023 vernieuwd en voorzien van een moderne inloop(regen)douche, wastafelmeubel en designradiator. Het moderne toilet is apart geplaatst en in dezelfde stijl afgewerkt. Daarnaast is er een aparte ruimte met aansluitingen voor de wasmachine en cv-ketel. Op de begane grond is bovendien een inpandige berging aanwezig, ideaal voor het stallen van fietsen of extra opslag.
LEWENBORG
De woning ligt in de wijk Lewenborg, aan de oostkant van Groningen. Een groene en rustige woonwijk met volop voorzieningen in de buurt, zoals een winkelcentrum, scholen, sportverenigingen en wijkcentrum Het Dok. De wijk is ruim opgezet, kindvriendelijk en goed bereikbaar.
Met de fiets ben je in circa 20 minuten in het centrum van Groningen. Met de auto doe je er ongeveer 15 minuten over en met het openbaar vervoer ben je er binnen 25 minuten. Een fijne plek voor wie rustig wil wonen, maar toch snel in de stad wil zijn.
Ben je benieuwd of dit fijne appartement jouw nieuwe thuis kan worden? Maak dan snel een afspraak voor een bezichtiging!
Specificaties
Over dit object
Overdracht
| Status | verkocht |
|---|---|
| Prijs | € 225.000 k.k. |
Bouw
| Bouwjaar | 1971 |
|---|---|
| Bouwvorm | bestaande bouw |
| Type Object | Appartement |
| Hoofdfunctie | Woonruimte |
Indeling
| Woonoppervlakte | 92 m² |
|---|---|
| Woning Inhoud | 306 m³ |
| Kamers | 3 (2 slaapkamers) |
Energie
| Energielabel | A |
|---|
Heb je vragen?
Neem contact met ons op.
Jouw NVM makelaar:
Dijkstra Makelaardij & Financieel advies


























































Refresh to make it work.
Refresh to make it work.