

- Home
- Aanbod
- Koopaanbod
- Kleine Hoorn 6
Kleine Hoorn 6
MARUM
In de geliefde woonwijk De Holten III staat deze twee-onder-één-kapwoning met de uitstraling van de jaren ’30 en het comfort van nu. De woning is goed onderhouden en voorzien van moderne gemakken die het dagelijks wonen extra plezierig maken.
Eerst een aantal pluspunten op een rij!
+ Ruime en lichte woonkamer met airco, die deze verdieping in korte tijd koelt of verwarmt
+ Moderne keuken met complete inbouwapparatuur
+ Drie slaapkamers op de eerste verdieping
+ Luxe badkamer met ligbad, inloopdouche, toilet en dubbele wastafel
+ Royale zolder met dakkapel, ideaal voor een extra kamer of werkruimte
+ Aangebouwde garage/berging en een zonnige tuin met ruime lichtdoorlatende pergola inclusief verlichting
+ Energielabel A en 16 zonnepanelen
INDELING
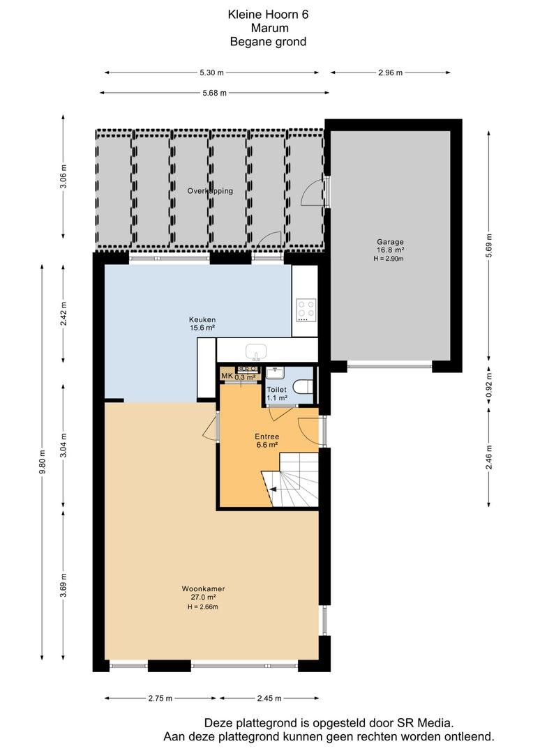
Wanneer je de woning binnenstapt, kom je via de hal met toilet en trapopgang in de lichte woonkamer. Deze ruimte staat in open verbinding met de keuken, die is voorzien van diverse inbouwapparatuur en is afgewerkt met een robuust composieten aanrechtblad.
Op de eerste verdieping bevinden zich drie slaapkamers en een complete badkamer. De badkamer is ingericht met een ligbad, douche, dubbele wastafel en toilet.
De tweede verdieping biedt een royale zolderkamer met dakkapel. Hier zijn de aansluitingen voor de wasmachine en de cv-installatie te vinden en de ruimte leent zich uitstekend voor een extra slaapkamer, werkkamer of hobbyruimte.
De oprit biedt plek voor meerdere auto's op eigen terrein en is voorzien van een ter overname aangeboden laadpaal. Via de garage, voorzien van een betonvloer en elektra, is de achtertuin bereikbaar. De achtertuin is voorzien van een luxe overkapping met inbouw-verlichting en is gelegen op het zonnige zuiden. Via een officieuze achteruitgang kunnen de jongsten via het achtergelegen gemeentegroen heerlijk onbezonnen naar de speeltuin slenteren. Er zijn geen directe achterburen aanwezig en de wijk is voorzien van veel groenstroken, waaronder direct achter deze tuin.
LOCATIE
Wonen in De Holten III in Marum betekent genieten van rust en ruimte, met alle dagelijkse voorzieningen binnen handbereik. De wijk is groen opgezet met brede lanen en speelplekken, waardoor het een prettige woonomgeving is voor jong en oud. Op korte afstand vind je winkels voor de dagelijkse boodschappen, scholen en sportfaciliteiten. Ook zorgvoorzieningen zoals huisarts en tandarts liggen vlakbij.
De bereikbaarheid is uitstekend: met de auto zit je in enkele minuten op de A7 en ben je zo in steden als Groningen, Drachten of Heerenveen. Daarnaast zijn er goede openbaarvervoersverbindingen. Voor ontspanning hoef je niet ver; wandel- en fietspaden door het omliggende landschap nodigen uit voor een ommetje of een lange tocht.
Kortom, hier combineer je het rustige karakter van een groene woonwijk met het gemak van voorzieningen en een centrale ligging.
Kom kijken
Deze woning biedt een fijne combinatie van rust, comfort en ruimte. Kom zelf ervaren hoe prettig het wonen hier is – wij laten het je graag zien.
Lees meer
Minder
Eerst een aantal pluspunten op een rij!
+ Ruime en lichte woonkamer met airco, die deze verdieping in korte tijd koelt of verwarmt
+ Moderne keuken met complete inbouwapparatuur
+ Drie slaapkamers op de eerste verdieping
+ Luxe badkamer met ligbad, inloopdouche, toilet en dubbele wastafel
+ Royale zolder met dakkapel, ideaal voor een extra kamer of werkruimte
+ Aangebouwde garage/berging en een zonnige tuin met ruime lichtdoorlatende pergola inclusief verlichting
+ Energielabel A en 16 zonnepanelen
INDELING
Wanneer je de woning binnenstapt, kom je via de hal met toilet en trapopgang in de lichte woonkamer. Deze ruimte staat in open verbinding met de keuken, die is voorzien van diverse inbouwapparatuur en is afgewerkt met een robuust composieten aanrechtblad.
Op de eerste verdieping bevinden zich drie slaapkamers en een complete badkamer. De badkamer is ingericht met een ligbad, douche, dubbele wastafel en toilet.
De tweede verdieping biedt een royale zolderkamer met dakkapel. Hier zijn de aansluitingen voor de wasmachine en de cv-installatie te vinden en de ruimte leent zich uitstekend voor een extra slaapkamer, werkkamer of hobbyruimte.
De oprit biedt plek voor meerdere auto's op eigen terrein en is voorzien van een ter overname aangeboden laadpaal. Via de garage, voorzien van een betonvloer en elektra, is de achtertuin bereikbaar. De achtertuin is voorzien van een luxe overkapping met inbouw-verlichting en is gelegen op het zonnige zuiden. Via een officieuze achteruitgang kunnen de jongsten via het achtergelegen gemeentegroen heerlijk onbezonnen naar de speeltuin slenteren. Er zijn geen directe achterburen aanwezig en de wijk is voorzien van veel groenstroken, waaronder direct achter deze tuin.
LOCATIE
Wonen in De Holten III in Marum betekent genieten van rust en ruimte, met alle dagelijkse voorzieningen binnen handbereik. De wijk is groen opgezet met brede lanen en speelplekken, waardoor het een prettige woonomgeving is voor jong en oud. Op korte afstand vind je winkels voor de dagelijkse boodschappen, scholen en sportfaciliteiten. Ook zorgvoorzieningen zoals huisarts en tandarts liggen vlakbij.
De bereikbaarheid is uitstekend: met de auto zit je in enkele minuten op de A7 en ben je zo in steden als Groningen, Drachten of Heerenveen. Daarnaast zijn er goede openbaarvervoersverbindingen. Voor ontspanning hoef je niet ver; wandel- en fietspaden door het omliggende landschap nodigen uit voor een ommetje of een lange tocht.
Kortom, hier combineer je het rustige karakter van een groene woonwijk met het gemak van voorzieningen en een centrale ligging.
Kom kijken
Deze woning biedt een fijne combinatie van rust, comfort en ruimte. Kom zelf ervaren hoe prettig het wonen hier is – wij laten het je graag zien.
Specificaties
Over dit object
Overdracht
| Status | verkocht |
|---|---|
| Prijs | € 425.000 k.k. |
Bouw
| Bouwjaar | 2007 |
|---|---|
| Bouwvorm | bestaande bouw |
| Type Object | Woonhuis |
| Hoofdfunctie | Woonruimte |
Indeling
| Woonoppervlakte | 129 m² |
|---|---|
| Perceeloppervlakte | 260 m² |
| Woning Inhoud | 552 m³ |
| Kamers | 5 (3 slaapkamers) |
Energie
| Energielabel | A |
|---|
Heb je vragen?
Neem contact met ons op.
Jouw NVM makelaar:
Dijkstra Makelaardij & Financieel advies

































































































Refresh to make it work.
Refresh to make it work.