

- Home
- Aanbod
- Koopaanbod
- Joeswerd 107
Joeswerd 107
GRONINGEN
Wonen met kilometers vrij uitzicht aan de voorzijde én volop ruimte binnen? Dan is Joeswerd 107 in de populaire wijk Reitdiephaven in Groningen precies wat je zoekt! Deze verrassend ruime eengezinswoning biedt vier volwaardige slaapkamers, een moderne afwerking, eigen oprit met laadpaal én een fijne achtertuin op het zuidoosten. Hier woon je comfortabel, licht en vrij, met alle voorzieningen binnen handbereik.
Eerst enkele pluspunten op een rij:
+ Kilometers vrij uitzicht aan de voorzijde
+ Ruime en lichte woonkamer van 36 m² met schuifpui naar de tuin
+ Moderne keuken met composiet blad, 5-pits gasfornuis, vaatwasser en oven
+ Vier ruime slaapkamers, grootste van maar liefst 17 m²
+ Badkamer met inloopdouche, dubbele wastafel en tweede toilet
+ Zonnepanelen (7 stuks) en recent vernieuwde cv-ketel
+ Elektrisch bedienbare rolluiken (voorzijde) en screen (keuken)
+ Eigen oprit met laadpaal en vernieuwde voordeur (2022)
+ Extra bergruimte op iedere verdieping en een aparte berging buiten
INDELING
Begane grond:
Je komt binnen via de vernieuwde voordeur in een nette entree met meterkast (glasvezel, kabel, krachtgroep voor laadpaal), toilet en toegang tot de woonkamer. De tuingerichte woonkamer is heerlijk ruim (36 m²) en voorzien van een trapkast en schuifpui naar de achtertuin. De open keuken aan de voorzijde is strak ingericht met een composiet werkblad, 5-pits gaskookplaat, oven, afzuigkap en vaatwasser. Vanuit hier kijk je uit over uitgestrekte landerijen met een adembenemend vrij uitzicht.
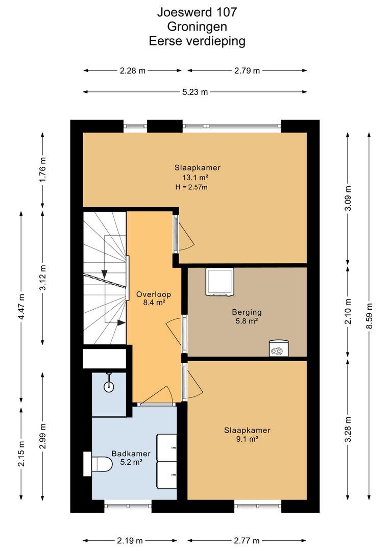
Eerste verdieping:
Hier vind je twee slaapkamers van 13 m² en 9 m². De moderne badkamer is uitgerust met een inloopdouche, dubbele wastafel, wandradiator en een tweede toilet. Daarnaast is er een ruime overloop en een praktische berging van 6 m² met aansluiting voor witgoed en de cv-ketel. Ook hangt hier de mechanische ventilatiebox.
Tweede verdieping:
Deze extra verdieping is een echte bonus! Je vindt hier nog twee fijne slaapkamers van 17 m² en 13 m², beide met openslaande deuren naar een Frans balkon. Op de overloop zorgt een dakkoepel voor extra lichtinval, en ook hier is nog een ruime berging van 7 m² aanwezig.
RONDOM DE WONING
De achtertuin is keurig verzorgd en ligt gunstig op het zuidoosten – ideaal voor zonliefhebbers. Je vindt hier een houten fietsenberging van ca. 4 m² met elektra, een buitenkraan én een praktische achterom. Via de schuifpui in de woonkamer loop je zo naar buiten om te genieten van je eigen groene oase. Aan de voorzijde beschik je over een eigen oprit met laadpaal. De woning is uitgerust met elektrisch bedienbare rolluiken aan de voorzijde en een elektrisch screen bij de keuken. En het mooiste? Je hebt aan de voorkant geen directe overburen, maar een weids uitzicht over de landerijen.
GRONINGEN
Joeswerd 107 ligt in de populaire wijk Reitdiephaven, een levendige en kindvriendelijke buurt met een kenmerkende haven en volop voorzieningen. Op loopafstand vind je onder andere een Jumbo supermarkt, Action, diverse kleinere winkels en meerdere horecagelegenheden zoals een wereldrestaurant, een sushi-afhaalrestaurant en de cafetaria “De Ideale Buurman”. Het bruisende stadscentrum van Groningen bereik je in ca. 20 minuten met de fiets, 15 minuten met de auto en ongeveer 25 minuten met het openbaar vervoer.
Ben jij klaar om elke dag wakker te worden met weids uitzicht, te wonen in comfort én te genieten van alles wat Reitdiephaven te bieden heeft? Wacht dan niet langer en plan vandaag nog een bezichtiging. Deze woning moet je met eigen ogen zien!
Lees meer
Minder
Eerst enkele pluspunten op een rij:
+ Kilometers vrij uitzicht aan de voorzijde
+ Ruime en lichte woonkamer van 36 m² met schuifpui naar de tuin
+ Moderne keuken met composiet blad, 5-pits gasfornuis, vaatwasser en oven
+ Vier ruime slaapkamers, grootste van maar liefst 17 m²
+ Badkamer met inloopdouche, dubbele wastafel en tweede toilet
+ Zonnepanelen (7 stuks) en recent vernieuwde cv-ketel
+ Elektrisch bedienbare rolluiken (voorzijde) en screen (keuken)
+ Eigen oprit met laadpaal en vernieuwde voordeur (2022)
+ Extra bergruimte op iedere verdieping en een aparte berging buiten
INDELING
Begane grond:
Je komt binnen via de vernieuwde voordeur in een nette entree met meterkast (glasvezel, kabel, krachtgroep voor laadpaal), toilet en toegang tot de woonkamer. De tuingerichte woonkamer is heerlijk ruim (36 m²) en voorzien van een trapkast en schuifpui naar de achtertuin. De open keuken aan de voorzijde is strak ingericht met een composiet werkblad, 5-pits gaskookplaat, oven, afzuigkap en vaatwasser. Vanuit hier kijk je uit over uitgestrekte landerijen met een adembenemend vrij uitzicht.
Eerste verdieping:
Hier vind je twee slaapkamers van 13 m² en 9 m². De moderne badkamer is uitgerust met een inloopdouche, dubbele wastafel, wandradiator en een tweede toilet. Daarnaast is er een ruime overloop en een praktische berging van 6 m² met aansluiting voor witgoed en de cv-ketel. Ook hangt hier de mechanische ventilatiebox.
Tweede verdieping:
Deze extra verdieping is een echte bonus! Je vindt hier nog twee fijne slaapkamers van 17 m² en 13 m², beide met openslaande deuren naar een Frans balkon. Op de overloop zorgt een dakkoepel voor extra lichtinval, en ook hier is nog een ruime berging van 7 m² aanwezig.
RONDOM DE WONING
De achtertuin is keurig verzorgd en ligt gunstig op het zuidoosten – ideaal voor zonliefhebbers. Je vindt hier een houten fietsenberging van ca. 4 m² met elektra, een buitenkraan én een praktische achterom. Via de schuifpui in de woonkamer loop je zo naar buiten om te genieten van je eigen groene oase. Aan de voorzijde beschik je over een eigen oprit met laadpaal. De woning is uitgerust met elektrisch bedienbare rolluiken aan de voorzijde en een elektrisch screen bij de keuken. En het mooiste? Je hebt aan de voorkant geen directe overburen, maar een weids uitzicht over de landerijen.
GRONINGEN
Joeswerd 107 ligt in de populaire wijk Reitdiephaven, een levendige en kindvriendelijke buurt met een kenmerkende haven en volop voorzieningen. Op loopafstand vind je onder andere een Jumbo supermarkt, Action, diverse kleinere winkels en meerdere horecagelegenheden zoals een wereldrestaurant, een sushi-afhaalrestaurant en de cafetaria “De Ideale Buurman”. Het bruisende stadscentrum van Groningen bereik je in ca. 20 minuten met de fiets, 15 minuten met de auto en ongeveer 25 minuten met het openbaar vervoer.
Ben jij klaar om elke dag wakker te worden met weids uitzicht, te wonen in comfort én te genieten van alles wat Reitdiephaven te bieden heeft? Wacht dan niet langer en plan vandaag nog een bezichtiging. Deze woning moet je met eigen ogen zien!
Specificaties
Over dit object
Overdracht
| Status | verkocht |
|---|---|
| Prijs | € 475.000 k.k. |
Bouw
| Bouwjaar | 2006 |
|---|---|
| Bouwvorm | bestaande bouw |
| Type Object | Woonhuis |
| Hoofdfunctie | Woonruimte |
Indeling
| Woonoppervlakte | 134 m² |
|---|---|
| Perceeloppervlakte | 191 m² |
| Woning Inhoud | 459 m³ |
| Kamers | 5 (4 slaapkamers) |
Energie
| Energielabel | A+ |
|---|
Heb je vragen?
Neem contact met ons op.
Jouw NVM makelaar:
Dijkstra Makelaardij & Financieel advies






































































































Refresh to make it work.
Refresh to make it work.