

- Home
- Aanbod
- Koopaanbod
- Electrastraat 3
Electrastraat 3
ZUIDHORN
Op zoek naar een moderne en instapklare 2-onder-1-kapwoning in de populaire wijk Oostergast in Zuidhorn? Deze woning uit 2017 biedt volop ruimte, comfort en een prachtige ligging aan het natuureiland met een vrije uitkijk. Met maar liefst vijf slaapkamers, een aangebouwde garage en een royale tuin, is dit het ideale huis voor wie ruim en rustig wil wonen met alle voorzieningen binnen handbereik.
Eerst enkele pluspunten op een rij:
+ Ruime 2-onder-1-kapwoning met aangebouwde, geïsoleerde garage
+ 5 slaapkamers, waarvan één met inloopkast
+ Energiezuinig met energielabel A+
+ Grote tuin met veel fruitbomen en -struiken.
+ Gelegen aan het natuureiland
INDELING
Je komt binnen via de zij-entree, gelegen onder de overkapping, met toegang tot de meterkast, trapkast en toiletruimte met wandcloset en fonteintje. Vanuit hier loop je door naar de ruime en lichte woonkamer. De woonkamer is gelegen aan de achterzijde van de woning en beschikt over openslaande deuren naar de tuin. Aan de voorzijde bevindt zich de open keuken, uitgerust met een vaatwasser, koelkast, vriezer, oven, inductiekookplaat en afzuigkap. De begane grond is afgewerkt met een eikenhouten vloer en voorzien van comfortabele vloerverwarming.
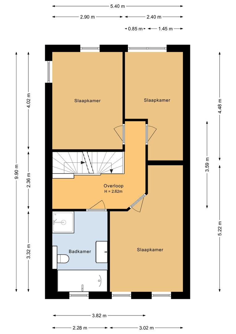
Op de eerste verdieping leidt de overloop naar drie volwaardige slaapkamers. Twee daarvan zijn rustig gelegen aan de achterzijde van de woning, de derde bevindt zich aan de voorzijde. De badkamer is compleet uitgerust met een bad, douche, toilet en wastafel. Ook deze verdieping is afgewerkt met een houten vloer en voorzien van vloerverwarming.
De tweede verdieping is in 2020 verbouwd tot volwaardige woonverdieping. Hier bevinden zich nog twee slaapkamers, waarvan één met een inloopkast. Verder is er een aparte wasruimte met extra aanrechtblok, en vind je hier de CV-opstelling (Intergas, 2017) en mechanische ventilatie.
RONDOM DE WONING
De woning beschikt over een aangebouwde, volledig geïsoleerde garage. De achtertuin is groot voor de wijk en is voorzien van diverse fruitbomen en -struiken. Aan de voorzijde bevindt zich een oprit met overkapping. De ligging aan het natuureiland zorgt voor een prettige en groene woonomgeving.
ZUIDHORN
Zuidhorn combineert het beste van twee werelden: een rustige, dorpse sfeer met alle dagelijkse voorzieningen dichtbij. Je vindt er supermarkten, diverse winkels, basisscholen, sportverenigingen en een zwembad. De wijk Oostergast, waar deze woning zich bevindt, is de jongste wijk van Zuidhorn en staat bekend om de kindvriendelijke opzet en het vele groen.
Het treinstation ligt op slechts 700 meter afstand en biedt een snelle verbinding met Groningen – met de trein sta je binnen 9 minuten in het centrum. Met de auto ben je er in 15 tot 20 minuten en op de fiets in ongeveer 30 tot 35 minuten.
Nieuwsgierig geworden? Plan snel een bezichtiging en ervaar zelf het comfort en de ruimte die deze woning te bieden heeft!
Lees meer
Minder
Eerst enkele pluspunten op een rij:
+ Ruime 2-onder-1-kapwoning met aangebouwde, geïsoleerde garage
+ 5 slaapkamers, waarvan één met inloopkast
+ Energiezuinig met energielabel A+
+ Grote tuin met veel fruitbomen en -struiken.
+ Gelegen aan het natuureiland
INDELING
Je komt binnen via de zij-entree, gelegen onder de overkapping, met toegang tot de meterkast, trapkast en toiletruimte met wandcloset en fonteintje. Vanuit hier loop je door naar de ruime en lichte woonkamer. De woonkamer is gelegen aan de achterzijde van de woning en beschikt over openslaande deuren naar de tuin. Aan de voorzijde bevindt zich de open keuken, uitgerust met een vaatwasser, koelkast, vriezer, oven, inductiekookplaat en afzuigkap. De begane grond is afgewerkt met een eikenhouten vloer en voorzien van comfortabele vloerverwarming.
Op de eerste verdieping leidt de overloop naar drie volwaardige slaapkamers. Twee daarvan zijn rustig gelegen aan de achterzijde van de woning, de derde bevindt zich aan de voorzijde. De badkamer is compleet uitgerust met een bad, douche, toilet en wastafel. Ook deze verdieping is afgewerkt met een houten vloer en voorzien van vloerverwarming.
De tweede verdieping is in 2020 verbouwd tot volwaardige woonverdieping. Hier bevinden zich nog twee slaapkamers, waarvan één met een inloopkast. Verder is er een aparte wasruimte met extra aanrechtblok, en vind je hier de CV-opstelling (Intergas, 2017) en mechanische ventilatie.
RONDOM DE WONING
De woning beschikt over een aangebouwde, volledig geïsoleerde garage. De achtertuin is groot voor de wijk en is voorzien van diverse fruitbomen en -struiken. Aan de voorzijde bevindt zich een oprit met overkapping. De ligging aan het natuureiland zorgt voor een prettige en groene woonomgeving.
ZUIDHORN
Zuidhorn combineert het beste van twee werelden: een rustige, dorpse sfeer met alle dagelijkse voorzieningen dichtbij. Je vindt er supermarkten, diverse winkels, basisscholen, sportverenigingen en een zwembad. De wijk Oostergast, waar deze woning zich bevindt, is de jongste wijk van Zuidhorn en staat bekend om de kindvriendelijke opzet en het vele groen.
Het treinstation ligt op slechts 700 meter afstand en biedt een snelle verbinding met Groningen – met de trein sta je binnen 9 minuten in het centrum. Met de auto ben je er in 15 tot 20 minuten en op de fiets in ongeveer 30 tot 35 minuten.
Nieuwsgierig geworden? Plan snel een bezichtiging en ervaar zelf het comfort en de ruimte die deze woning te bieden heeft!
Specificaties
Over dit object
Overdracht
| Status | verkocht |
|---|---|
| Prijs | € 479.500 k.k. |
Bouw
| Bouwjaar | 2017 |
|---|---|
| Bouwvorm | bestaande bouw |
| Type Object | Woonhuis |
| Hoofdfunctie | Woonruimte |
Indeling
| Woonoppervlakte | 138 m² |
|---|---|
| Perceeloppervlakte | 331 m² |
| Woning Inhoud | 564 m³ |
| Kamers | 6 (5 slaapkamers) |
Energie
| Energielabel | A+ |
|---|
Heb je vragen?
Neem contact met ons op.
Jouw NVM makelaar:
Dijkstra Makelaardij & Financieel advies





































































































Refresh to make it work.
Refresh to make it work.