

- Home
- Aanbod
- Koopaanbod
- de Gorn 14
de Gorn 14
TOLBERT
Op zoek naar een instapklare gezinswoning met ruimte en comfort? Dan is De Gorn 14 in Tolbert precies wat je zoekt! Deze goed onderhouden tussenwoning beschikt over een lichte woonkamer, moderne keuken en maar liefst vier slaapkamers. Met een fijne overkapping in de tuin en diverse recente verbeteringen kun je hier zó intrekken.
Eerst enkele pluspunten op een rij:
+ Instapklare woning met verzorgde afwerking
+ Lichte woonkamer en praktische indeling
+ Complete keuken (2023) met Quooker en inbouwapparatuur
+ HR-glas en horren op de slaapkamers
+ Tuin met overkapping
+ Praktische berging
+ 7 zonnepanelen
INDELING
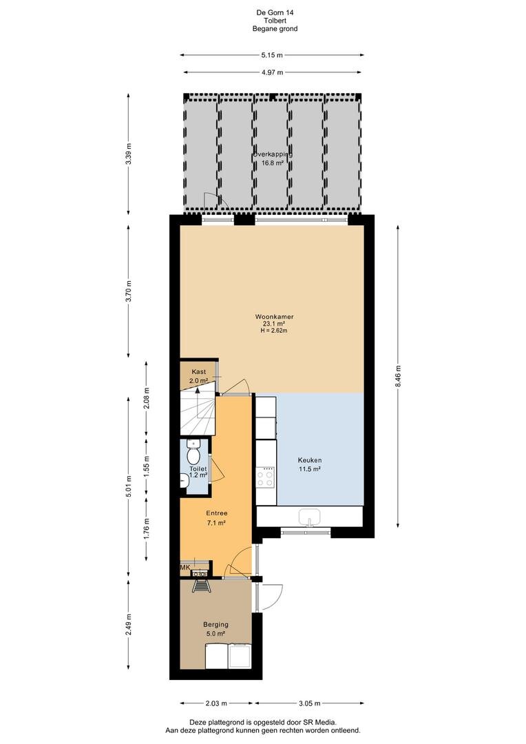
Via de entree kom je binnen in de hal met meterkast, trapopgang en een (gedateerd) toilet. Vanuit hier loop je door naar de woonkamer, een lichte en prettig ingedeelde leefruimte met voldoende plek voor een gezellige zit- en eethoek en een mooi zicht op de tuin. In de woonkamer bevindt zich tevens een praktische trapkast voor extra bergruimte. Aan de voorzijde van de woning ligt de in 2023 vernieuwde keuken, modern uitgevoerd en voorzien van diverse inbouwapparatuur, waaronder een grote koelkast, combi-oven, inductiekookplaat, vaatwasser en een Quooker. Vanuit de hal is daarnaast de praktische berging bereikbaar, voorzien van witgoedaansluitingen en extra bergruimte.
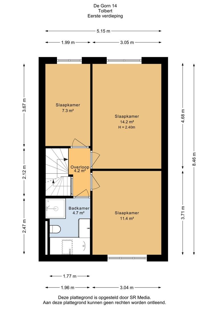
De overloop geeft toegang tot drie slaapkamers van ca. 14 m², 11 m² en 7 m². Alle kamers zijn netjes afgewerkt en voorzien van HR-glas en horren. De badkamer is uitgerust met een douchecabine, ligbad, wastafelmeubel en een toilet.
Via een vaste trap bereik je de zolderverdieping met een overloop voorzien van bergruimte achter de knieschotten, de opstelling van de CV-ketel en de in 2023 vernieuwde mechanische ventilatie. Aansluitend bevindt zich de vierde slaapkamer, voorzien van een vernieuwd Velux dakraam (2023).
RONDOM DE WONING
De achtertuin is verzorgd aangelegd en biedt een fijne plek om buiten te zitten. Direct aan de woning bevindt zich een overkapping waar je beschut kunt genieten. Er is voldoende ruimte voor een eettafel en een zitplek. Daarnaast grenst de tuin aan een vijver, wat zorgt voor een prettige en rustige ligging
TOLBERT
Tolbert is een sfeervol en levendig dorp met een uitstekende mix van rust en voorzieningen. Hier vind je alles wat je nodig hebt: van supermarkten en scholen tot sportverenigingen en gezellige horecagelegenheden. Het dorp heeft een rijk verenigingsleven en biedt een breed scala aan activiteiten voor jong en oud, van sport en cultuur tot ontspanning.
Ook het nabijgelegen Leek zorgt voor extra voorzieningen en mogelijkheden. De nabijheid van het bruisende Groningen maakt Tolbert extra aantrekkelijk. Met de auto ben je binnen ongeveer 20 minuten in het centrum van Groningen, en het openbaar vervoer biedt eveneens een goede verbinding.
Ben je enthousiast geworden? Neem dan contact op voor een bezichtiging en ervaar zelf wat deze instapklare woning te bieden heeft!
Lees meer
Minder
Eerst enkele pluspunten op een rij:
+ Instapklare woning met verzorgde afwerking
+ Lichte woonkamer en praktische indeling
+ Complete keuken (2023) met Quooker en inbouwapparatuur
+ HR-glas en horren op de slaapkamers
+ Tuin met overkapping
+ Praktische berging
+ 7 zonnepanelen
INDELING
Via de entree kom je binnen in de hal met meterkast, trapopgang en een (gedateerd) toilet. Vanuit hier loop je door naar de woonkamer, een lichte en prettig ingedeelde leefruimte met voldoende plek voor een gezellige zit- en eethoek en een mooi zicht op de tuin. In de woonkamer bevindt zich tevens een praktische trapkast voor extra bergruimte. Aan de voorzijde van de woning ligt de in 2023 vernieuwde keuken, modern uitgevoerd en voorzien van diverse inbouwapparatuur, waaronder een grote koelkast, combi-oven, inductiekookplaat, vaatwasser en een Quooker. Vanuit de hal is daarnaast de praktische berging bereikbaar, voorzien van witgoedaansluitingen en extra bergruimte.
De overloop geeft toegang tot drie slaapkamers van ca. 14 m², 11 m² en 7 m². Alle kamers zijn netjes afgewerkt en voorzien van HR-glas en horren. De badkamer is uitgerust met een douchecabine, ligbad, wastafelmeubel en een toilet.
Via een vaste trap bereik je de zolderverdieping met een overloop voorzien van bergruimte achter de knieschotten, de opstelling van de CV-ketel en de in 2023 vernieuwde mechanische ventilatie. Aansluitend bevindt zich de vierde slaapkamer, voorzien van een vernieuwd Velux dakraam (2023).
RONDOM DE WONING
De achtertuin is verzorgd aangelegd en biedt een fijne plek om buiten te zitten. Direct aan de woning bevindt zich een overkapping waar je beschut kunt genieten. Er is voldoende ruimte voor een eettafel en een zitplek. Daarnaast grenst de tuin aan een vijver, wat zorgt voor een prettige en rustige ligging
TOLBERT
Tolbert is een sfeervol en levendig dorp met een uitstekende mix van rust en voorzieningen. Hier vind je alles wat je nodig hebt: van supermarkten en scholen tot sportverenigingen en gezellige horecagelegenheden. Het dorp heeft een rijk verenigingsleven en biedt een breed scala aan activiteiten voor jong en oud, van sport en cultuur tot ontspanning.
Ook het nabijgelegen Leek zorgt voor extra voorzieningen en mogelijkheden. De nabijheid van het bruisende Groningen maakt Tolbert extra aantrekkelijk. Met de auto ben je binnen ongeveer 20 minuten in het centrum van Groningen, en het openbaar vervoer biedt eveneens een goede verbinding.
Ben je enthousiast geworden? Neem dan contact op voor een bezichtiging en ervaar zelf wat deze instapklare woning te bieden heeft!
Specificaties
Over dit object
Overdracht
| Status | beschikbaar |
|---|---|
| Prijs | € 310.000 k.k. |
Bouw
| Bouwjaar | 1983 |
|---|---|
| Bouwvorm | bestaande bouw |
| Type Object | Woonhuis |
| Hoofdfunctie | Woonruimte |
Indeling
| Woonoppervlakte | 110 m² |
|---|---|
| Perceeloppervlakte | 133 m² |
| Woning Inhoud | 400 m³ |
| Kamers | 5 (4 slaapkamers) |
Energie
| Energielabel | B |
|---|
Plan een bezichtiging
voor: de Gorn 14
Jouw NVM makelaar:
Dijkstra Makelaardij & Financieel advies
























































































Refresh to make it work.
Refresh to make it work.